


2 Place du Concert
59800 Lille
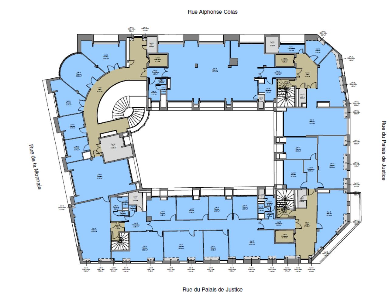
544 m²
Divisible dès 264 m²
Loyer sur demande
Disponibilité : Immédiate

Camille PARISIS
Description
BNP Paribas Real Estate vous propose à la location ces belles surfaces de bureaux au cœur de Lille.
Découvrez ces magnifiques surfaces de bureaux idéalement situées en plein coeur du Vieux Lille, offrant un cadre de travail prestigieux et dynamique. Nos plateaux de bureaux lumineux sont parfaitement aménagés pour répondre aux besoins des entreprises favorisant ainsi un environnement propice à la productivité et à la collaboration.
Vous profiterez d'une proximité immédiate avec une large gamme de services et de commerces, facilitant ainsi le quotidien de vos équipes. De plus, l'accès aux gares de Lille est rapide et des places de parking sont disponibles, vous garantissant ainsi une accessibilité optimale.
Ne manquez pas cette opportunité unique de vous installer dans l'un des quartiers les plus prisés de Lille. Pour plus d'informations ou pour organiser une visite, n'hésitez pas à nous contacter !
Services & prestations
Equipements
-
Ascenseurs : 2
-
Type de chauffage : Collectif
Type / Etat du bâtiment
-
Etat de l'immeuble : Etat d'usage










