




16 Place Gambetta
59290 Wasquehal
178 m²
160 €
HT/HC/m²/an
Disponibilité : Immédiate

Etienne DARTOIS
Description
Surfaces de bureaux disponibles immédiatement à la location, proche des Grands Boulevards !
Explorez l'excellence professionnelle en découvrant cet espace de bureaux situé au 16 place Gambetta à Wasquehal.
BNPPRE vous propose à la location cet espace de bureaux entièrement refait à neuf, d'une surface totale de 516 m², divisibles dès 338 m², offrant un environnement de travail idéal pour votre activité.
L'immeuble, situé à proximité des Grands Boulevards, bénéficie d'un emplacement convoité, notamment grâce à son accès rapide aux transports publics de la Métropole Lilloise :
- l'arrêt de bus "Place Gambetta" au pied de l'actif ;
- à 800 mètres de la station de métro "Wasquehal Hôtel de Ville", doté également d'une station V'Lille ;
- la station de tramway "La Terrasse" à 20 min à pied ;
- le HUB de transport des Gares de Lille en moins de 30 min en métro via la ligne 2 (gare TGV et gare TER) ;
- l'aéroport Lille-Lesquin à 20 min en voiture.
L'actif se situe a proximité des grands axes de la Métropole Lilloise :
- voie rapide urbaine ;
- A22 ;
- A23 ;
- A1.
L'immeuble, entièrement refait à neuf, est livré en base paysagère et propose de nombreuses prestations hautes gammes :
- excellente visibilité ;
- accès sécurisé ;
- climatisation réversible ;
- accès PMR en RDC.
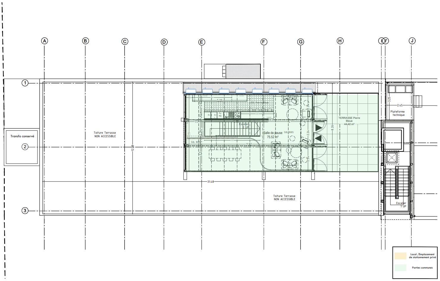
Vous aurez également accès à une zone de convivialité commune de 75 m², équipée d'une cuisine moderne et meublée ainsi que d'une terrasse de 45 m².
10 places de parking viennent compléter ce bien.
Disponibilité immédiate.
Contactez nous afin de planifier votre visite !
Toutes nos offres de bureaux sur https://www.bnppre.fr/bureau/nord-59/
Services & prestations
Aménagements
-
Accès Pers. Mobilité Réduite : En RDC
-
Aménagement des bureaux : Plateaux livrés en base paysagère
Equipements
-
Climatisation : Réversible
Prestations de service
-
Cafétéria : Zone de convivalité commune de 75 m² équipée d'une cuisine, meublée et terrasse de 45 m²
-
Parking : 10 Places
-
Sécurité : Accès sécurisé
Type / Etat du bâtiment
-
Etat de l'immeuble : Immeuble entièrement refait à neuf
-
Etat des locaux : Rénové










