




Location Bureau 235 m²
77700 Serris
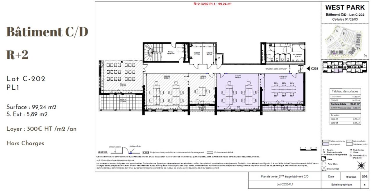
235 m²
Divisible dès 48 m²
à partir de 300 €
HT/HC/m²/an
Disponibilité : 05/03/2026

Baptiste QUILGARS
Description
SERRIS (77)
A Louer
BNP PARIBAS REAL ESTATE vous propose, sur la commune de Serris, un Parc de Bureaux, proposant de nombreux services, à proximité immédiate de l'A4.
Division possible à partir de 48 m².
Frais de rédaction de bail notarié à prévoir.
BNP PARIBAS REAL ESTATE vous propose, à la location, un parc de bureaux divisible à partir de 48 m².
Le bâtiment neuf certifié BREEAM Very Good offre des plateaux permettant une grande flexibilité d'aménagement et de nombreux autres services et prestations techniques. Ces locaux bénéficient d'une accessibilité remarquable dans un environnement visible et dynamique.
Accessibilité
Desserte routière : A4 - D231 - D406
RER : A "Val d'Europe"
Services / Prestations
Terrasses - jardins : Espaces verts
Faux plafond
Sol bureaux : Moquette
Pour toute information complémentaire, n'hésitez pas à prendre contact avec nos consultants BNP PARIBAS REAL ESTATE.
Services & prestations
Aménagements
-
Aménagement des bureaux : Cloisonnés/Ouverts
-
Sanitaires
Equipements
-
Faux plafond
-
Fenêtres
-
Plinthes techniques périphériques
-
Sol bureaux : Moquette
Prestations de service
-
Parking
Extérieurs
-
Terrasses - jardins : Espaces verts
Normes, Certifications et Labels
-
Certification : BREEAM
Type / Etat du bâtiment
-
Etat de l'immeuble : Neuf
-
Etat des locaux : Neuf










