




5 Rue Regnault
93500 Pantin
5 088 m²
350 €
HT/HC/m²/an
Disponibilité : Immédiate

Antoine MALHERBE
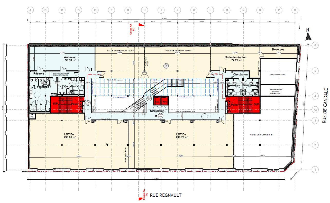
Description
LA GALERIE
Découvrez La Galerie, un projet de restructuration d'un bâtiment indépendant ERP 2 situé dans un environnement calme et agréable dans la commune de Pantin. L' immeuble propose de de grandes surfaces de bureaux autour d'un atrium d'une dizaine de mètres de hauteur et un terrasse et un Roof Top accessibles.
Avec son caractère industriel et ses nombreux labels "green", la bâtiment est pensé afin de favoriser le bien être des utilisateurs en leur créant une atmosphère biotope. Place également à la luminère avec ses nombreuses verrières, un grand auditorium, rooftop et terrasses.
N'hésitez pas et contactez nous pour plus d'informations.
Services & prestations
Aménagements
-
Accueil
-
Accès Pers. Mobilité Réduite
-
Aménagement des bureaux : Cloisonnés/Ouverts
-
Effectif théorique : 1000 personne(s)
-
Espace bien-être
-
Hall d'accueil
-
Sanitaires : 52 Privatif(s)
Equipements
-
Ascenseurs : 1
-
Charge au sol Etage : 350,00 kg/m²
-
Climatisation : Air rafraîchi
-
Douche
-
Fenêtres
-
Onduleur : 80 kvA
-
Plinthes techniques périphériques
-
Type de chauffage : Collectif
Prestations de service
-
Parking : 10 Places
-
Sécurité : Contrôle d'accès
Extérieurs
-
Terrasses - jardins : 2 Terrasses accessibles de 80 et 171 m²
Normes, Certifications et Labels
-
Catégorie ERP : 2
-
Label cible : HQE BREEAM WIREDSCORE EC1
Structure du bâtiment
-
Charpente : En briques
Type / Etat du bâtiment
-
Etat de l'immeuble : Etat d'usage
-
Etat des locaux : Neuf
-
Immeuble indépendant
-
Type d'immeuble
Informations complémentaires
-
Onduleur de 80Kva
-
Local vélo sécurisé










