




Location Bureau 2 004 m²
95000 Cergy
2 004 m²
Divisible dès 397 m²
à partir de 70 €
HT/HC/m²/an
Disponibilité : Immédiate

Nathalie DELOEUVRE
Description
CERGY
Le Mercury
BNP Paribas Real Estate vous propose à la location des bureaux dans un immeuble climatisé à proximité des commerces, des transports en commun et de l'autoroute A15.
Immeuble bénéficiant d'un hall d'entrée avec espace accueil.
Les surfaces s'entendent quote part de parties communes incluses.
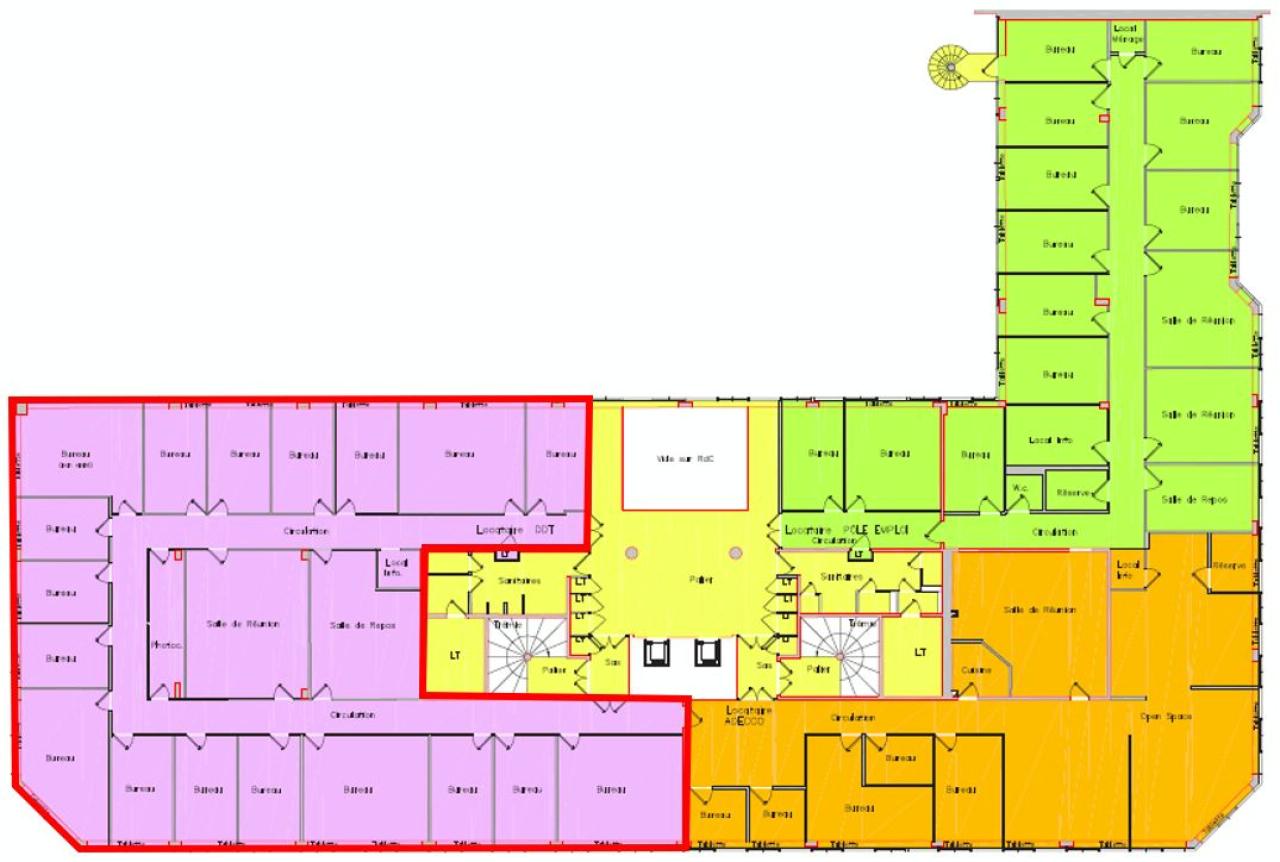
Il est à préciser pour le lot de 397 m² en R+3 est entièrement rénové, avec une division possible.
Venez découvrir, cet immeuble, situé dans le quartier dynamique de la Ville de Cergy-Préfecture, idéalement situé au croisement des axes autoroutiers, et bénéficiant de toutes les dessertes de transport en commun.
Immeuble climatisé, les plateaux sont lumineux et accessibles par ascenseur, des parkings extérieur et en sous-sol complètent l'atout de cet immeuble.
De plus, l'immeuble est elligible à la classification ERP;
Le lot du 1er étage peut être divisé en 2, soit les anciens lots 179 (227,1 m², PC incluses) et 180 (258,9 m², PC incluses),
Le lot du 3ème étage entièrement rénové :
- Peinture : de l’ensemble des murs
- Sol : Pose de linoleum
- Plafond : passage en LED et de l’ensemble des dalles
- Remplacement des goulottes électrique
- Remplacement des stores et des tablettes de fenêtres
- Remplacement de ventilos convecteurs
- Division possible
Votre conseiller BNPPARIBAS REAL ESTATE reste à votre disposition pour vous faire visiter ces surfaces.
Services & prestations
Aménagements
-
Accueil : Hôtesses
-
Hall d'accueil : Collectif
Equipements
-
Ascenseurs : 2
-
Climatisation : Réversible Ventilo-convecteurs de type vertical en allège
Prestations de service
-
Parking : Possibilité bornes électriques
Informations complémentaires
-
Plateaux éclairés quasi intégralement en 1er jour










