Image

Image

Image

Image

Image

Référence : OLCOM2538018
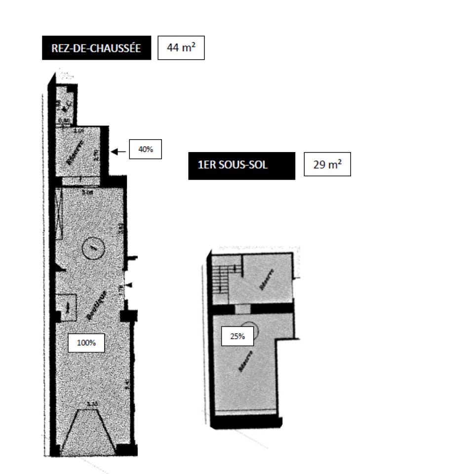
Location Commerce 43 m²
75010 Paris
43 m²
581 €
HT/HC/m²/an
Disponibilité : Immédiate
Référence : OLCOM2538018

Rudy LELLOUM
Description
PARIS 10 : RUE LA FAYETTE, SUR LA PLACE FRANZ LISZT | PROCHE GARE DU NORD / GARE DE L'EST
ENVIRONNEMENT RETAIL : COMMERCE | SERVICE DE PROXIMITE | FOOD&BEVERAGE, ...










