




77 RUE DE RENNES
75006 Paris
71 m²
1 132 €
HT/HC/m²/an
Disponibilité : Immédiate

Mikael FLEISMAHER
Description
RUE DE RENNES - LOCATION PURE
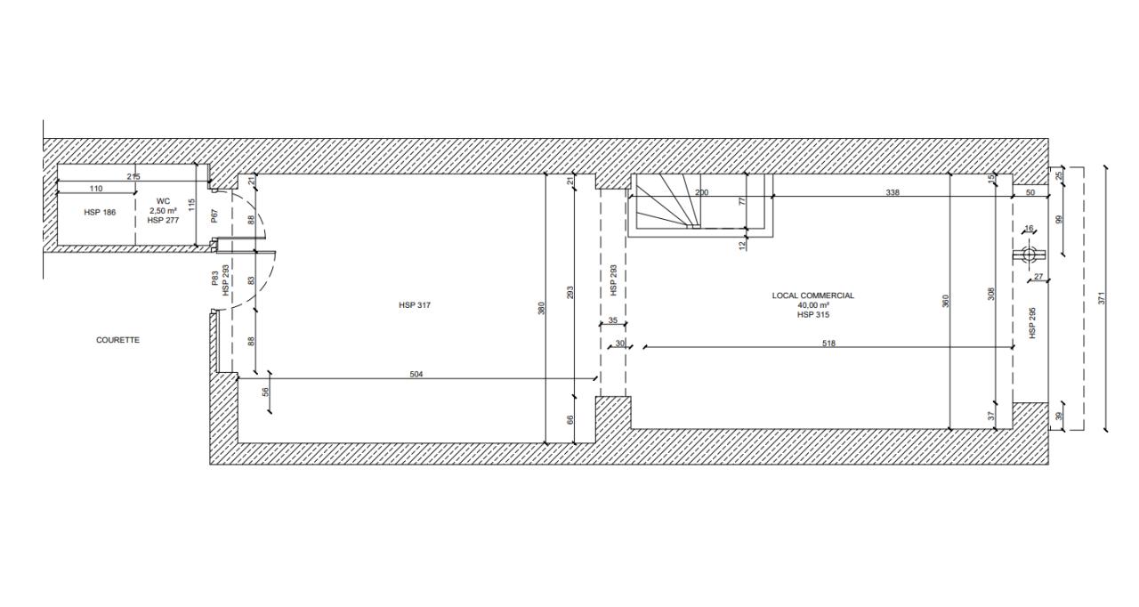
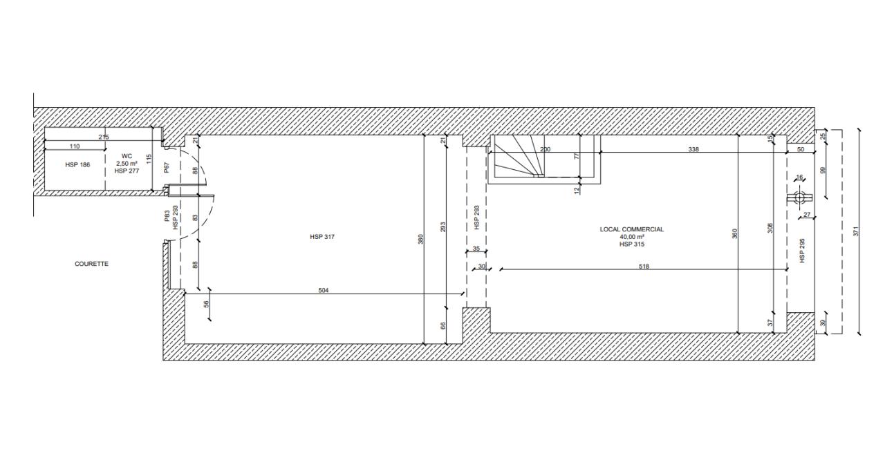
BNP PARIBAS Real Estate vous propose une très jolie boutique au coeur de la rue de Rennes, dans un bel environnement commercial situé entre le Boulevard Raspail et le Boulevard Saint-Germain, à proximité du métro Saint-Sulpice. La boutique se compose d'un rez-de-chaussée de 44 m² et d'une réserve au sous-sol de 26,6 m². A visiter sans tarder.
Services & prestations
Extérieurs
-
Linéaire de façade : 5,00 mètre(s)










