




Location Entrepôt Classe A 9 461 m²
91220 Brétigny-sur-Orge
9 461 m²
65 €
HT/HC/m²/an
Disponibilité : Immédiate

Nicolas GOUY
Description
BRETIGNY-SUR-ORGE (91)
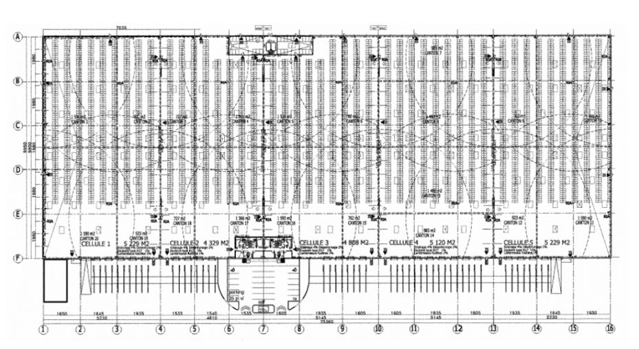
Nous vous proposons deux cellules d'une surface de 9 461,11 m² environ.
BNP PARIBAS REAL ESTATE vous propose deux cellules d'une surface totale de 9 461 m² environ.
Caractéristiques techniques :
- 1 porte d'accès plain-pied
- 8 portes à quai
- Hauteur libre : 9,8 m
Services & prestations
Hauteurs
-
Hauteur libre : 9,80 mètre(s)
Structure du bâtiment
-
Couverture : Bac acier isolé
Equipements
-
Charge au sol Rdc : 5,00 tonne(s)/m²
-
Porte d'accès plain-pied : 1
-
Porte d'accès à quai : 8
-
Sprinklers : Mono couche (ESFR)
Extérieurs
-
Aire de manoeuvre : 32 ml










