




Location Entrepôt Classe A 20 710 m²
68330 Huningue
20 710 m²
Loyer sur demande
Disponibilité : 12 mois après accord

David RAYBOIS
Description
HUNINGUE (68)
PROJET ENTREPÔT LOGISTIQUE
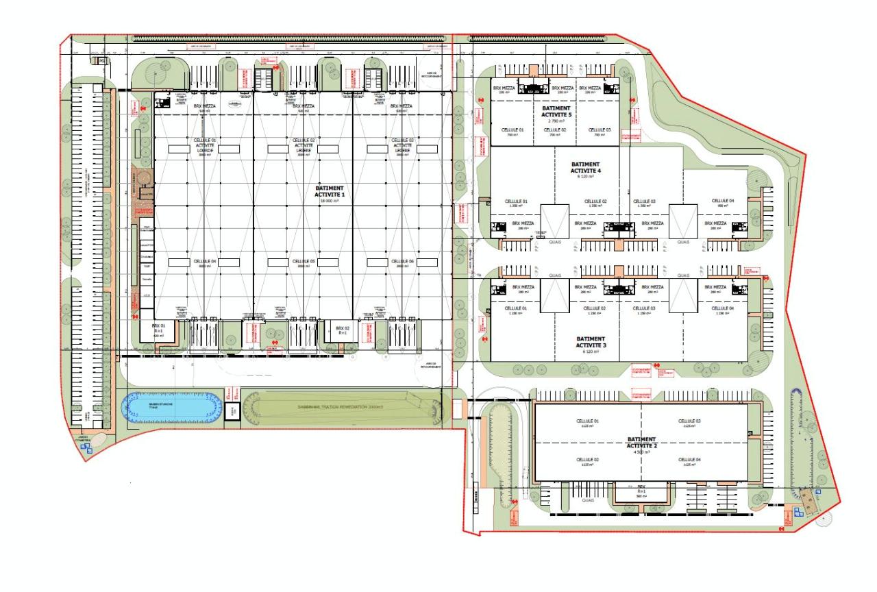
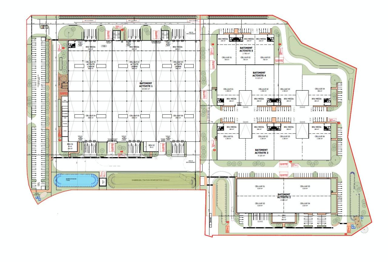
Nous vous proposons à la location un projet d'entrepôt logistique Classe A, composé de 6 cellules et totalisant une surface d'environ 20 710 m² dont 2 710 m² de bureaux. ICPE A : 1510, 1530, 1532, 2662, 2663-1, 2663-2.
Etat de construction: PC+ICPE Obtenus. Disponibilité : 12 mois après accord
Label BiodiverCity et certification BREEAM Excellent
BNP PARIBAS REAL ESTATE vous propose à la location un projet d'entrepôt logistique Classe A, composé de 6 cellules, certification BREEAM Excellent, d'une surface totale d'environ 20 710 m². Le bâtiment est situé à Huningue (68), ville frontalière avec la Suisse, située à 10 minutes de l'aéroport international de Bâle-Mulhouse et 35 minutes de Mulhouse.
Disponibilité : 12 mois après accord
Caractéristiques techniques
Surface bureaux : 2 710 m²
Site clôturé et sécurisé
Poste de garde
Portes d'accès à quai : 18
Parking : 90 places VL / 13 places PL
Certifications : BREEAM Excellent, BiodiverCity
ICPE
ICPE A : 1510, 1530, 1532, 2662, 2663-1, 2663-2
Accessibilité
Accès routiers : A35
Aéroport Bale Mulhouse à 8 km
Gare Mulhouse à 35 min
Bus : Ligne 603 à 200 m
Pour toute information complémentaire, contactez-nous.
Services & prestations
Normes, Certifications et Labels
-
Autorisation d'exploiter 1 : 1510, 1530, 1532, 2662, 2663-1, 2663-2
Equipements
-
Porte d'accès à quai : 18
Prestations de service
-
Parking : 13 Places, 90 Places
-
Sécurité : PC Sécurité
Informations complémentaires
-
Raccordement à la fibre








