



Location Local d'activité 20 030 m²
68330 Huningue
20 030 m²
Loyer sur demande
Disponibilité : 12 mois après accord

David RAYBOIS
Description
HUNINGUE (68)
PROJET PARC D'ACTIVITÉ
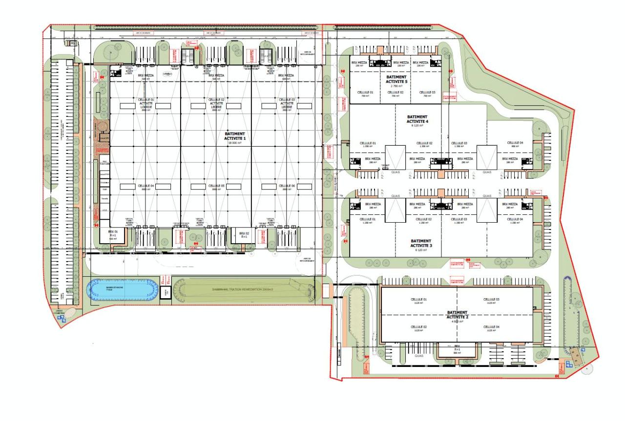
Nous vous proposons à la location un parc d'activité, situé à Huningue Sud (site frontalier Suisse) composé de 4 bâtiments avec des cellules de taille différentes. Le site dispose également d'une capacité d'extension pour des bureaux et du parking.
Etat de construction: PC+ICPE Obtenus. Disponibilité : 12 mois après accord
ICPE A : 1510, 1530, 1532, 2662, 2663-1, 2663-2
BNP PARIBAS REAL ESTATE vous propose à la location un parc d'activité, composé de 4 bâtiments et d'une surface totale d'environ 20 030 m². Le site est situé à Huningue (68), ville frontalière avec la Suisse, située à 10 minutes de l'aéroport international de Bâle-Mulhouse et 35 minutes de Mulhouse.
Disponibilité : 12 mois après accord
Caractéristiques techniques
- Surface bureaux : 3 430 m²
- Site clôturé et sécurisé
Poste de garde
Portes d'accès à quai : 18
- Parking : 90 places VL / 13 places PL
- Certifications : BREEAM Excellent, BiodiverCity
ICPE
ICPE A : 1510, 1530, 1532, 2662, 2663-1, 2663-2
Accessibilité
- Accès routiers : A35
- Aéroport Bale Mulhouse à 8 km
Gare Mulhouse à 35 min
- Bus : Ligne 603 à 200 m
Pour toute information complémentaire, contactez-nous.
Services & prestations
Equipements
-
Porte d'accès à quai : 18
Prestations de service
-
Parking : 13 Places, 90 Places
-
Sécurité : PC Sécurité
Normes, Certifications et Labels
-
Autorisation d'exploiter 1 : 1510, 1530, 1532, 2662, 2663-1, 2663-2
Informations complémentaires
-
Raccordement à la fibre





