




Location Entrepôt Classe A 9 752 m²
59160 Lille
9 752 m²
Divisible dès 3 226 m²
75 €
HT/HC/m²/an
Disponibilité : 12 mois après accord

Maxence MARECHAL
Description
LOMME (59)
PC et ICPE obtenus
Nous vous proposons, à la location, un entrepôt logistique à construire d'une surface de 9752 m² environ situé à Lomme (59), en bordure de la Rocade Nord Ouest. Proximité A25, RN 41, et A1
ICPE : 1510,2662,2663,1511,1530,1532. Certification BREEAM Very Good.
Projet de clés en main de 9 751,8 m² environ sur une emprise foncière de 28 611 m² environ.
Le terrain se situe sur la commune de Lomme à proximité de la rocade Nord-Ouest, l'autoroute A25 et du périphérique Sud de Lille.
La zone est desservie par les transports en communs et à proximité du centre commercial Auchan Englos.
Caractéristique des Entrepôts :
- Bâtiment Classe A de dernière génération
- Super structure en béton
- Hauteur libre : 11m libre
- Isolation renforcée
- Résistance au sol : 5T/m²
- Quais avec portes sectionnelles (1unité / 1000 m² environ)
- Désenfumage conforme à la réglementation
- Locaux techniques (chaufferie, TGBT, Transformateur)
- Eclairage Full LED
- Rubrique ICPE 1510,2662,2663,1511,1530,1532
- Certification VERYGOOD
- Installation d’une centrale photovoltaïque sur 100% de la toiture
Caractéristique des extérieurs
- Possibilité poste de garde
- Site entièrement clos avec clôture périphérique du site (h = 2 m)
- Dissociation des flux VL et PL sur le site
- Cour camion 35 m
- Aire de béquillage entièrement béton profondeur 16 m minimum
- Stationnements VL (y compris PMR) avec chemin d’accès aux bureaux et locaux sociaux (70 places)
- Stationnements PL et zone d’attente PL extérieure (6 places)
- Abri 2 roues
- Espaces verts
Surface totale : 9751.8 m²
Se décomposant comme suit :
Cellule 1 :
- Entrepôt : 2.815,3 m²
- Bureaux : 108.4 m²
- Mezzanine : 238 m²
- Local de charge: 50 m²
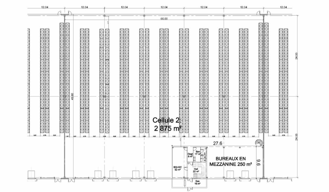
Cellule 2 :
- Entrepôt : 2.800,8 m²
- Bureaux : 119,3 m²
- Mezzanine : 229 m²
- Locaux techniques : 26,5 m²
- Locaux de charge : 49.9
Cellule 3 :
- Entrepôt : 2.817 m²
- Bureaux : 108 m²
- Mezzanine : 2236 m²
- Locaux de charge : 50 m²
- Locaux techniques : 26.5 m²
- Local onduleur : 50 m²
Services & prestations
Hauteurs
-
Hauteur libre : 11,00 mètre(s)
Normes, Certifications et Labels
-
Autorisation d'exploiter 1 : 1510 2662, 2663, 1511,1530,1532
Type / Etat du bâtiment
-
Etat de l'immeuble : Neuf
-
Etat des locaux : Neuf
-
Immeuble indépendant
Structure du bâtiment
-
Couverture : Bac acier isolé muticouches
Equipements
-
Charge au sol Rdc : 5,00 tonne(s)/m²
-
Câblage informatique
-
Eclairage intérieur : LED
-
Plinthes techniques périphériques
-
Porte d'accès plain-pied : 3
-
Porte d'accès à quai : 11 Quais niveleurs
-
Sols du bâtiment : Béton
-
Source chauffage : Gaz Aérotherme
-
Zone de béquillage : Entièrement béton profondeur 16 m minimum
Prestations de service
-
Parking : 6 Places 70 Places VL
-
Sécurité : Site clôturé et sécurisé
Aménagements
-
Hall d'accueil
-
Locaux sociaux
Extérieurs
-
Aire de manoeuvre : 35 ml
-
Terrasses - jardins
Informations complémentaires
-
Certification : BREEAM very good, Possibilité poste de garde / Abri 2 roues, Superstructure en béton
-
Locaux techniques (chaufferie/TGBT/Transformateur), Site entièrement clos avec clôture périphérique du site (h=2 m)
-
Aire de béquillage entièrement béton profondeur 16 m minimum, Installation d'une centrale photovoltaïque sur 100% de la toiture










