




Location Local d'activité 876 m²
59840 Pérenchies
876 m²
Divisible dès 336 m²
Loyer sur demande
Disponibilité : Immédiate

Hadrien NORY
Description
PERENCHIES - PA de l'Horloge
BNP Paribas Real Estate vous propose à la location deux cellules d'activités de 540 m² et 336 m².
Le Parc d’Activités de l’Horloge à Pérenchies est une zone industrielle de 19,41 hectares, abritant environ 109 entreprises. Située à proximité de la rocade Nord-Ouest desservant Lille, cette zone bénéficie d’une accessibilité facilitée. Parmi les sociétés implantées figurent LOGISCAM, DUTEXDOR et PLASTAL. Des locaux d’activités, allant de 400 à 800 m², sont disponibles à la vente ou à la location, avec des entrepôts accessibles de plain-pied et des bureaux en rez-de-chaussée et à l’étage.
Nous proposons à la location deux cellules d'entrepôt fonctionnelles, idéalement situées au coeur du Parc de l'Horloge à Pérenchies. Ces espaces sont parfaits pour les entreprises cherchant à étendre leurs activités de stockage dans un environnement stratégique et bien desservi.
Lot 25-3 :
Surface : 540 m²
1 porte sectionnelle + 1 porte piétonne
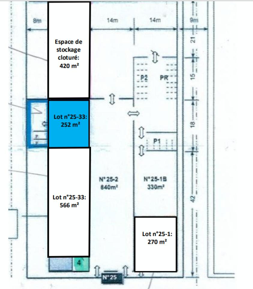
Lot 25-33
Surface : 336 m²
Entrepôt 252 m² + Mezzanine de 84 m²
2 portes piétonnes + 2 rideaux métalliques
Places de parking disponibles devant les cellules
Disponibilité : Immédiate
Pour plus d'informations ou pour organiser une visite, contactez nous !
À la recherche de locaux ou d'entrepôts à louer ou à vendre dans la métropole lilloise / Lille ? Découvrez nos offres de location et de vente dans les parcs d'activités et zones d'activité du Nord Pas de Calais. Que ce soit pour des cellules de stockage, hangar, industrie, du foncier ou des projets clé en main, nos surfaces sont disponibles pour répondre à vos besoins.
Toutes nos offres sur https://www.bnppre.fr/local-activite/nord-59/
Services & prestations
Equipements
-
Porte d'accès plain-pied
-
Sols du bâtiment : Béton
Aménagements
-
Mezzanine










