




Vente Local d'activité 612 m²
59320 Sequedin
612 m²
787 500 €
HT/HD
Disponibilité : Immédiate

Albane AMOROS
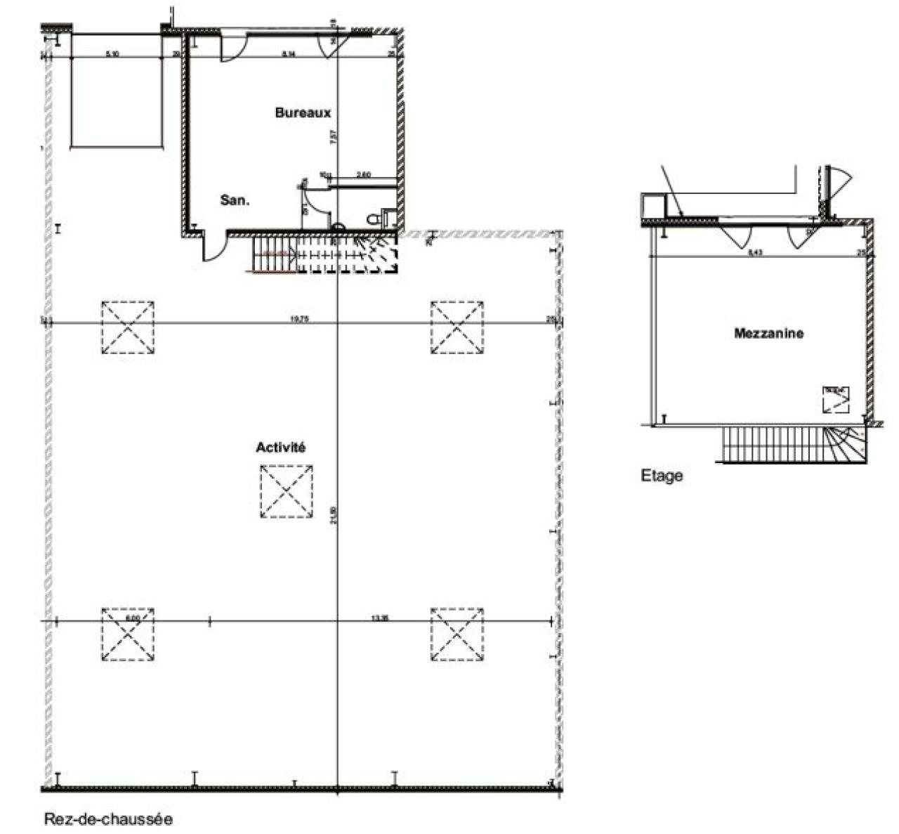
Description
SEQUEDIN
Découvrez cette opportunité rare sur la commune de Sequedin, au cœur d'un ensemble d'entrepôts récents. Cette cellule de stockage à vendre de 612 m² est idéale pour vos besoins professionnels, que vous soyez à la recherche d'un espace de stockage ou pour vos activités professionnelles.
Caractéristiques principales :
- Surface totale : 612 m²
- Construction récente : Partie d'un ensemble moderne de plusieurs cellules
- Accessibilité : Situé à proximité des grands axes routiers et autoroutes, facilitant les déplacements et les livraisons
- Aménagement flexible : Convient à divers secteurs d'activité (stockage, logistique, artisanat, etc.)
- Sécurité : Site sécurisé avec portail
- Une porte sectionelle
- 6 emplacements de parking VL
Cet entrepôt représente une belle opportunité d'implantation sur un secteur en pleine croissance, tout en étant proche de Lille et de sa métropole.
Besoin d'un local industriel/ artisanal, d'un entrepôt ou d'un foncier à louer ou à vendre dans le Nord Pas de Calais ? Nos solutions de location et de vente de surfaces industrielles, de hangars ou de cellules de stockage dans la métropole lilloise répondent à vos attentes. Découvrez nos surfaces/ offres et installez-vous rapidement au sein de votre futur parc d'activités.
Services & prestations
Hauteurs
-
Hauteur libre : 6,00 mètre(s)
Equipements
-
Câblage informatique
-
Faux plafond : Avec éclaige encastré
-
Fenêtres : Double vitrage
-
Plinthes techniques périphériques
-
Porte d'accès plain-pied : 1
-
Sols du bâtiment : Béton
Structure du bâtiment
-
Charpente : Métallique
-
Couverture : Bac acier isolé
Prestations de service
-
Parking : 6 Places
Aménagements
-
Aménagement des bureaux : Espaces Ouverts
-
Sanitaires
Extérieurs
-
Aire de manoeuvre










