




Location Entrepôt Classe A 5 850 m²
69780 Mions
5 850 m²
à partir de 80 €
HT/HC/m²/an
Disponibilité : Immédiate

Nicolas MASERO
Description
MIONS (69)
ZI LYON EST "LES PIERRES BLANCHES"
Sur le secteur de la Rocade Est de Lyon, dans un entrepôt logistique classe A, nous vous proposons à la location une cellule d'environ 5 850 m² dont 5 700 m² de stockage te 150 m² de bureaux.
L’ensemble bénéficie d’une localisation stratégique exceptionnelle : accès direct à l’A46 et à proximité immédiate de l’A43 et du Boulevard Urbain Sud. ICPE A : 1510
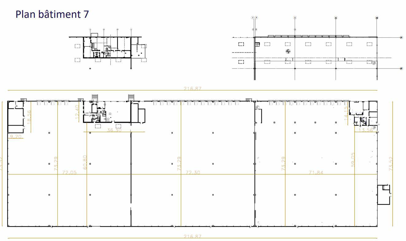
MIONS (69) - ZI LYON EST "LES PIERRES BLANCHES" - CELLULE A LOUER - 5 850 m² (Bâtiment 7)
Sur le secteur de la Rocade Est de Lyon, dans un entrepôt logistique classe A, nous vous proposons à la location une cellule d'environ 5 850 m² dont 5 700 m² de stockage te 150 m² de bureaux.
Le site est au coeur d'une zone d'activités dynamique (ZI LYON EST "LES PIERRES BLANCHES") à MIONS et bénéficie d'un emplacement stratégique et économique avec un direct à l'A46 et au Boulevard Urbain Sud.
Accès :
- A46 : à proximité immédiate
- A43 : à proximité
- Gare de Saint Priest (TER) : 2.4 km
- Aéroport international Bron : 11 km
Caractéristiques techniques :
- Hauteur Sous Plafond : 10 mètres
- Charge au sol Rdc : 5 tonnes/m²
- 12 portes d'accès à quai
- Eclairage LED
- RIA et système de detection incendie
- Sprinklers
- SSIAP 24h/24, 7j/7 avec surveillance générale du site
ICPE Autorisation 1510
Services & prestations
Hauteurs
-
Hauteur libre : 10,00 mètre(s)
Normes, Certifications et Labels
-
Autorisation d'exploiter 1 : 1510
Type / Etat du bâtiment
-
Etat de l'immeuble : Etat d'usage
-
Etat des locaux : Etat d'usage
Structure du bâtiment
-
Charpente : Béton
Equipements
-
Charge au sol Rdc : 5,00 tonne(s)/m²
-
Eclairage intérieur : LED
-
Porte d'accès à quai : 12
-
Puissance électrique : Tarif Jaune
-
Source chauffage : Gaz
-
Sprinklers : Mono couche (ESFR) et Réseau Incendie Armé (Bât 7)
Prestations de service
-
Sécurité : SSIAP 24h/24, 7j/7 avec surveillance générale du site
Extérieurs
-
Aire de manoeuvre : 35 ml
Informations complémentaires
-
Entretien espaces verts, des voiries et de l'éclairage du site
-
Entretien étanchéité toiture
-
Entretien espaces verts, des voiries et de l'éclairage du site










