

Location Entrepôt Classe C 6 884 m²
84000 Avignon
6 884 m²
95 €
HT/HC/m²/an
Disponibilité : 01/09/2026

Mathieu PLANTIER
Description
AVIGNON (84)
ZI La Courtine
ENTREPÔT CLASSE C - À LOUER
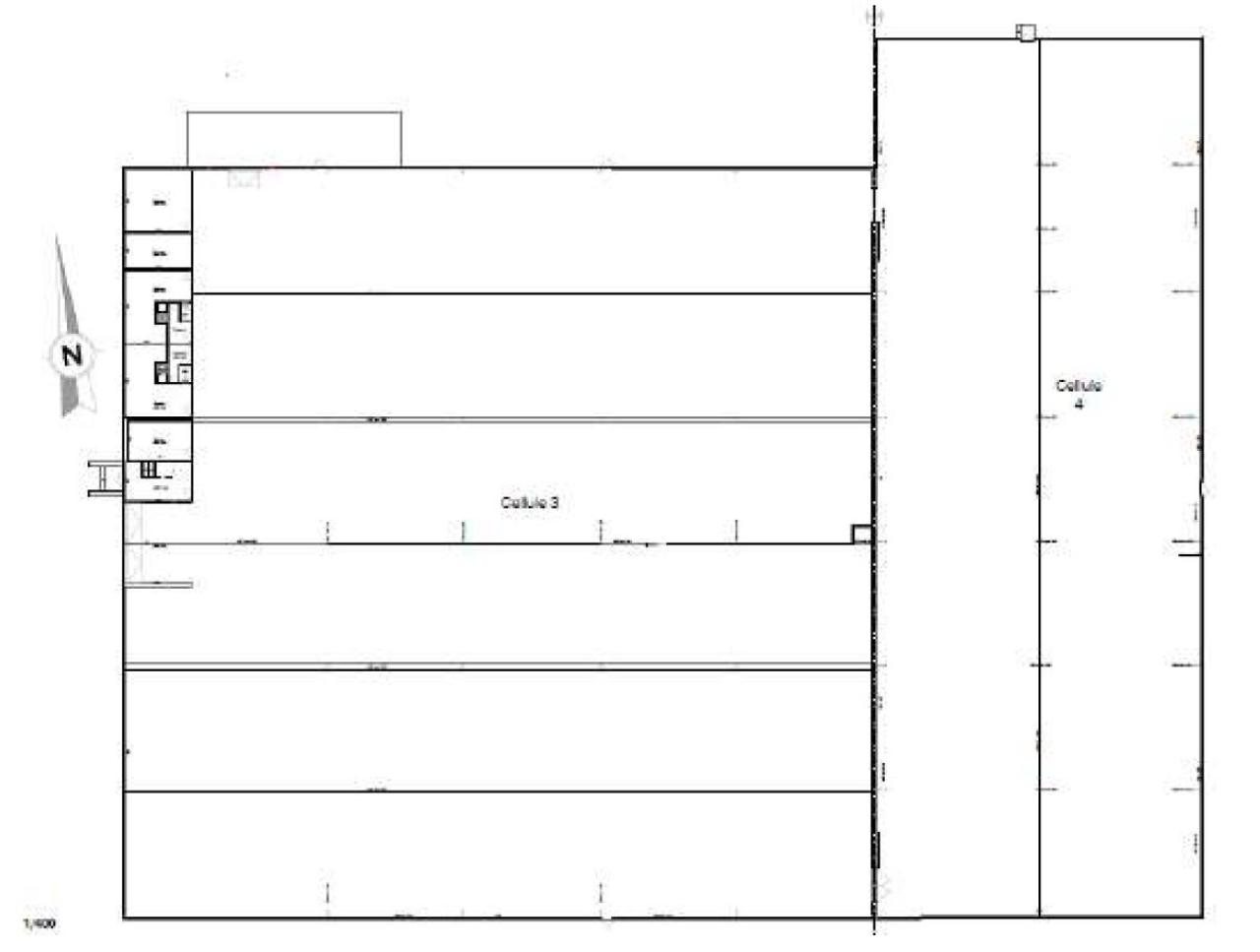
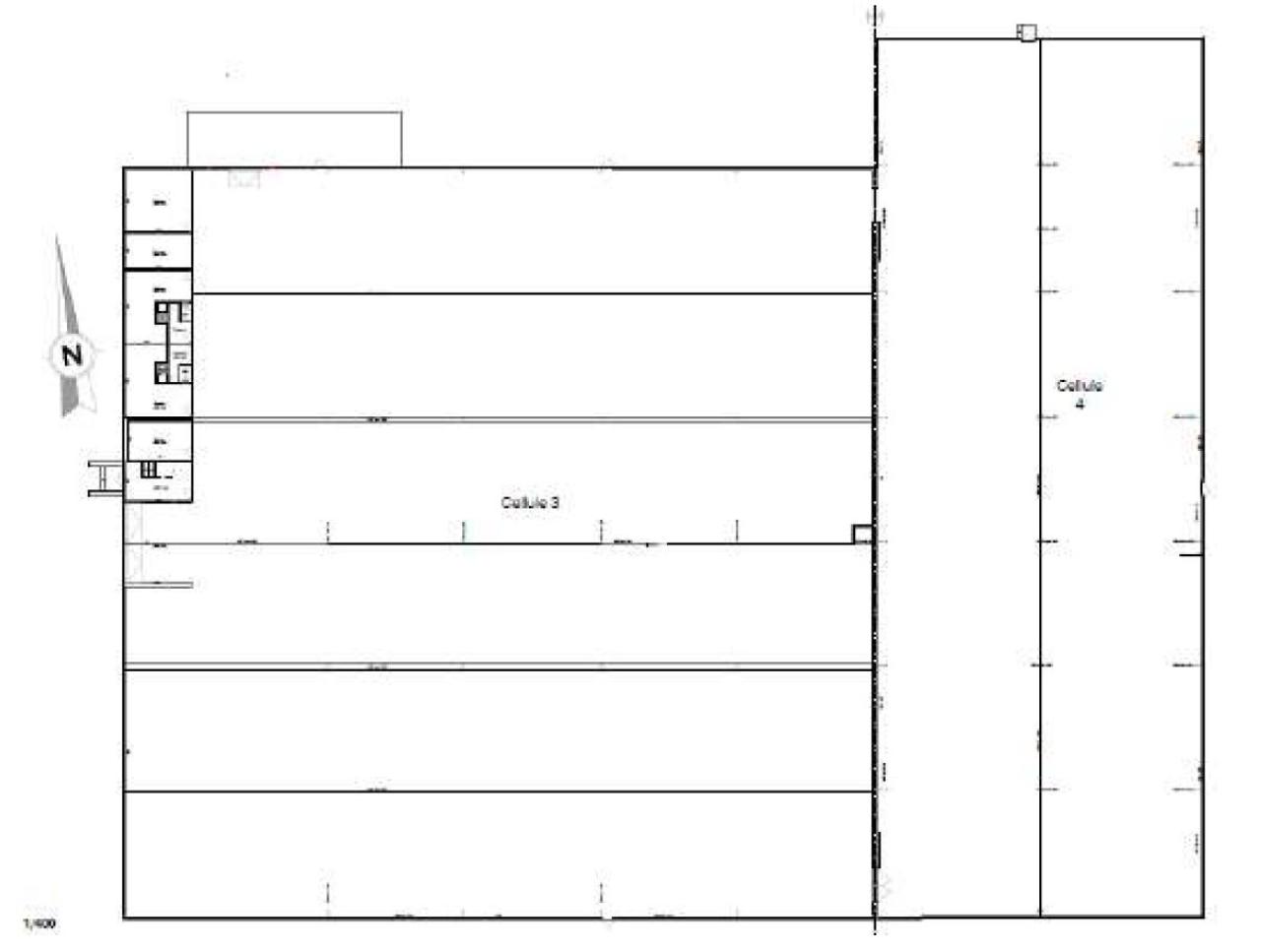
Au sein de la ZI La Courtine, nous vous proposons à la location un entrepôt Classe C d'environ 6 884 m² dont 6 478 m² de stockage et 406 m² de bureaux et locaux sociaux. Disponibilité : Septembre 2026.
Le site bénéficie d'un desserte routière particulièrement avantageuse grâce à la connexion rapide aux autoroutes A7 et A9. Ces axes majeurs facilitent les déplacements vers le nord (Lyon, Paris) et le sud (Marseille, Montpellier), optimisant ainsi les flux de transport pour les entreprises implantées dans la zone.
BNP PARIBAS REAL ESTATE vous propose à la location un entrepôt Classe C d'une surface totale d'environ 6 884 m². Le bâtiment est situé à Avignon (84) à proximité des axes routiers N100/N57/N7/A7/A9. Le site bénéficie d'un desserte routière particulièrement avantageuse grâce à la connexion rapide aux autoroutes A7 et A9. Ces axes majeurs facilitent les déplacements vers le nord (Lyon, Paris) et le sud (Marseille, Montpellier), optimisant ainsi les flux de transport pour les entreprises implantées dans la zone.
Disponibilité : Septembre 2026
Caractéristiques techniques
Surface bureaux : 406 m²
Hauteur libre : 7,50 à 7,90 mètres
Portes d'accès à quai : 10
Accessibilité
Accès routiers : N100/N57/N7/A7/A9
Gare Avignon Centre
Pour toute information complémentaire, contactez-nous.
Services & prestations
Hauteurs
-
Hauteur libre : 7,50 mètre(s) à 7,90 mètres
Equipements
-
Porte d'accès à quai : 10










