




Location Entrepôt Classe A 37 759 m²
89100 Sens
37 759 m²
Loyer sur demande
Disponibilité : 18 mois après accord

David RAYBOIS
Description
SENS (89)
PROJET LOGISTIQUE
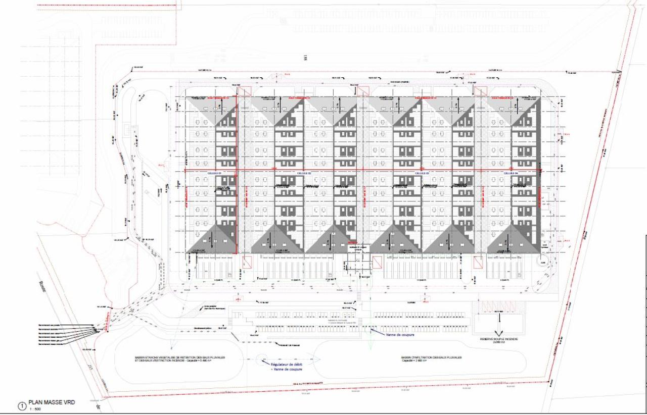
Nous vous proposons à la location un projet d'entrepôt logistique, d'une surface totale d'environ 37 759 m².
Etat de construction : PC+ICPE DÉPOSÉS. Disponibilité 18 mois après accord.
ICPE : 1510(E), 1530(E), 1532(E), 2662(E), 2663-1(E), 2663-2(E), 2910(D), 2925.1(D), 2925.2(D)
Certification BREEAM Very Good et Label BiodiverCity
BNP PARIBAS REAL ESTATE vous propose, à la location, un projet d'entrepôt logistique, d'une surface totale d'environ 37 759 m². Le projet est situé à SENS (89), à proximité des axes routiers A5 / A19 / D660.
Disponibilité : 18 mois après accord
Caractéristiques techniques
Surface bureaux : 1 109 m²
Hauteur libre : 11,50 mètres
Porte d'accès à quai : 36 places
Aire de manoeuvre : 38 ml
Charges au sol RDC : 5 tonnes / m²
Parking extérieur : 116 places
Certification BREEAM Very Good / Label BiodiverCity
ICPE
ICPE D : 2910, 2925.1, 2925.2
ICPE E : 1510, 1530, 1532, 2662, 2663-1, 2663-2
Accessibilité
Accès routiers : A5 / A19 / D660
Pour toute information complémentaire, contactez-nous.
Services & prestations
Hauteurs
-
Hauteur libre : 11,50 mètre(s)
Normes, Certifications et Labels
-
Autorisation d'exploiter 2 : 2910.A, 2925
-
Autorisation d'exploiter 3 : 1510, 1530, 1532, 2662, 2663-1, 2663-2
-
Certification : BREEAM
Type / Etat du bâtiment
-
Etat de l'immeuble : Neuf
Structure du bâtiment
-
Charpente : Métallique
Equipements
-
Charge au sol Rdc : 5,00 tonne(s)/m²
-
Eclairage intérieur : LED
-
Porte d'accès à quai : 36
-
Source chauffage : Gaz
Prestations de service
-
Parking : 10 Places, 116 Places
-
Sécurité : Poste de garde
Extérieurs
-
Aire de manoeuvre : 38 ml
Informations complémentaires
-
Toiture en photovoltaïque avec réinjection dans le réseau
-
1 plot bureaux en R+2 au centre du bâtiment








