




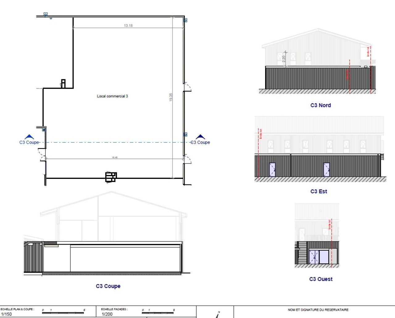
Location Local d'activité 302 m²
33980 Audenge
302 m²
70 €
HT/HC/m²/an
Disponibilité : Immédiate

Deborah DORIGO
Description
A LOUER / COMMERCE SHOWROOM AUDENGE
BNP PARIBAS REAL ESTATE vous propose à la location plusieurs surfaces commerciales en RDC d'un bâtiment mixte totalisant une surface de 1 680 m² divisé comme suit :
Au RDC, 5 cellules pour une destination commerce/show-room.
Hauteur sous plafond RDC de 3m.
Les cellules commerciales sont livrées brutes, fluide en attente, vitrine posée.
N'hésitez pas à nous contacter pour organiser une visite.
Services & prestations
Hauteurs
-
Hauteur sous porte plain-pied : 3,00 mètre(s)
Informations complémentaires
-
Cellule livrée brute, fluide en attente, vitrine posée










