




Location Local d'activité 2 845 m²
33530 Bassens
2 845 m²
Divisible dès 1 100 m²
70 €
HT/HC/m²/an
Disponibilité : 01/01/2026

Raoul DE LOISY
Description
BASSENS (33)
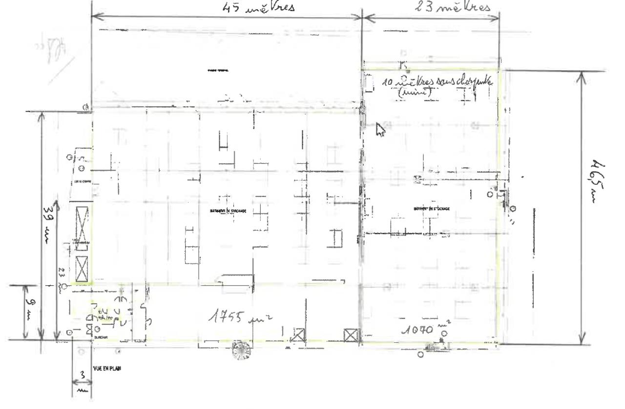
A LOUER ENTREPOT & BUREAUX 2845 m² env divisible dès 1100 m² env
BNP PARIBAS REAL ESTATE vous propose un entrepôt équipé stratégiquement bien placé proche A10, rocade et Centre-ville de Bordeaux
Cet entrepôt est idéalement desservi par les principaux axes routiers de l'agglomération.
Il est équipé de :
- 4 quais PL niveleurs
- toiture bac acier
- murs bardage double-peau
- site gardienné
possibilité de division en 2 cellules :
1100 m² env
1745 m² env
N'hésitez pas à nous contacter au 06 12 71 47 85 pour saisir cette opportunité rare aux portes de Bordeaux et de la rocade.
Services & prestations
Hauteurs
-
Hauteur sous poutre : 7m/7m30 pour les 1745 m² et 10m / 11,40m pour les 1070 m²
Accès véhicules
-
Accessibilité type véhicules : Tous porteurs
Equipements
-
Faux plafond
-
Fenêtres
-
Porte d'accès à quai : 4
-
Rampes d'accès : 1
-
Réseau Incendie Armé
-
Sols du bâtiment : Béton en dalles
Type / Etat du bâtiment
-
Etat de l'immeuble : Seconde main
Structure du bâtiment
-
Charpente : Métallique
-
Couverture : Bac acier isolé
Aménagements
-
Locaux sociaux
-
Sanitaires
Extérieurs
-
Aire de manoeuvre
Informations complémentaires
-
Locaux en état d'usage, Toiture isolée
-
Résistance de la dalle 2T/m²










