




Location Local d'activité 554 m²
31770 Colomiers
554 m²
135 €
HT/HC/m²/an
Disponibilité : Immédiate

Franck SANCHEZ
Description
COLOMIERS - LOCAL D'ACTIVITE A LOUER
*** RARE ***
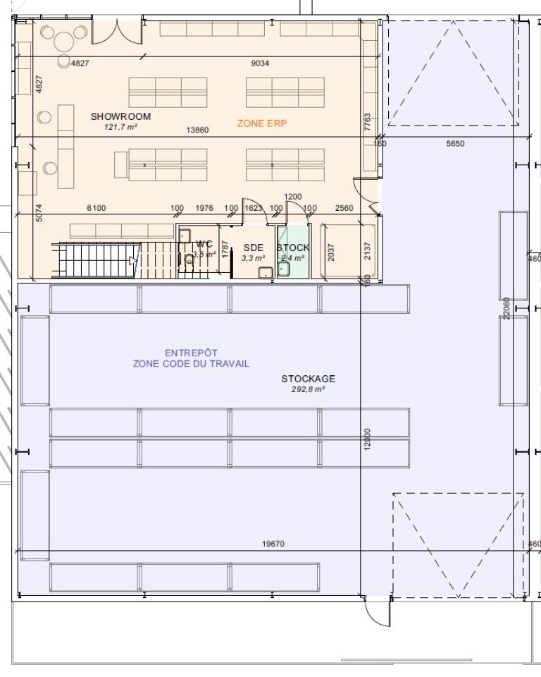
Nous vous proposons à la location, un magnifique bâtiment neuf à usage mixte (bureaux, showroom, activités et stockage) d'une surface totale de 554 m² dont 260 m² de bureaux intégralement aménagés et prêts à travailler.
Au coeur de la zone industrielle d'En jacca, venez découvrir ce local flambant neuf intégralement aménagé avec des matériaux d'excellente qualité et pensé pour le confort de vos équipes.
Vous accédez à la partie bureaux / showroom par une porte vitrée donnant sur un grand hall d'accueil bénéficiant d'une belle luminosité. Vous retrouverez au rez-de-chaussée une douche ainsi qu'un sanitaire PMR.
Accessible par 1 porte sectionnelle de 4 mètres de hauteur, la zone de stockage communique également avec les bureaux / showroom du RDC. L'atelier / stockage bénéficie d'une excellente luminosité grâce à des luminaires LED.
L'entrepôt est entièrement équipé et dispose d'un compteur en tarif jaune (240 Kva). La hauteur libre de cette zone est de plus de 7 mètres et il est également possible d'installer un pont-roulant. Enfin, la porte sectionnelle donne sur une zone de stockage extérieure fermée, accessible aux poids-lourds.
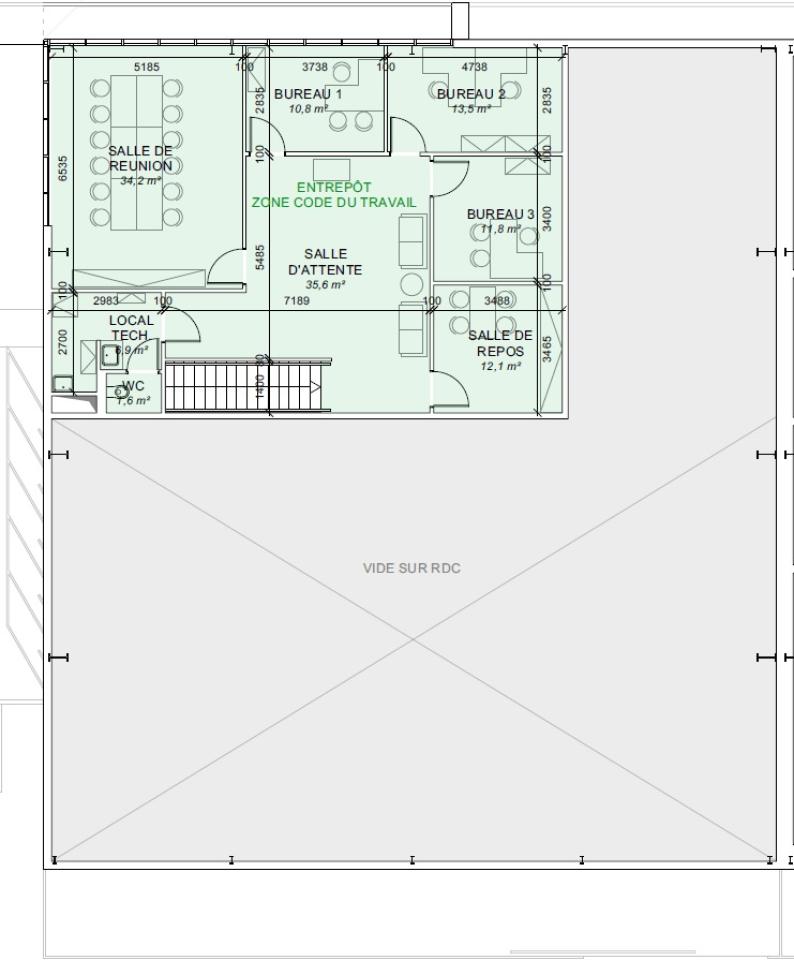
Vous accédez à l'étage par un escalier design depuis le showroom, donnant sur un espace bar / convivialité et plusieurs bureaux / locaux sociaux. Sur la partie gauche a été aménagé un grand bureau de direction et/ou salle de réunion de plus de 34 m² disposant d'un mur avec des niches prévues pour recevoir une télévision.
L'étage est complété par 3 bureaux fermés, tous climatisés ainsi qu'une belle cuisine / salle de repos équipée et enfin une salle informatique climatisée.
Les bureaux bénéficient de finitions exceptionnelles, autant d'atouts pour répondre à vos besoins et accueillir votre activité dans les meilleures conditions.
Vous souhaitez visiter ce bien ou avoir plus d'informations ? Contactez-nous au 05 61 23 56 56 !
Services & prestations
Hauteurs
-
Hauteur libre : 7,00 mètre(s)
-
Hauteur sous porte plain-pied : 4,00 mètre(s)
Accès véhicules
-
Accessibilité type véhicules : Tous porteurs
Equipements
-
Charge au sol Rdc : 2,00 tonne(s)/m²
-
Climatisation : Réversible avec Airzone
-
Câblage informatique : RJ45 (Fibre)
-
Douche : 1
-
Eclairage Bureaux : Luminaires encastrés LED
-
Eclairage intérieur : LED
-
Eclairage naturel : Zénithal skydôme
-
Faux plafond : Dal. fibres minéral.
-
Plinthes techniques périphériques
-
Porte d'accès plain-pied : 1
-
Puissance électrique : Tarif Jaune
-
Sol bureaux : Béton quartzé
-
Sols du bâtiment : Dalle béton quartzé
Type / Etat du bâtiment
-
Etat des locaux : Neuf
-
Immeuble indépendant
Structure du bâtiment
-
Charpente : Métallique
-
Couverture : Bac acier isolé
-
Murs : Bardage double peau
Prestations de service
-
Parking
Aménagements
-
Accueil
-
Accès Pers. Mobilité Réduite
-
Aménagement des bureaux : Cloisonnés
-
Salle informatique
-
Sanitaires










