




Location Local d'activité 170 m²
74330 Poisy
170 m²
137 €
HT/HC/m²/an
Disponibilité : Immédiate

Stephane CONTE
Description
POISY PARC DE CALVI
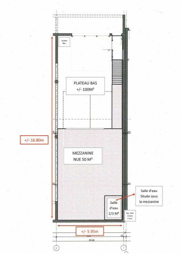
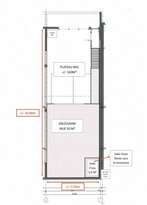
ATELIER NEUF
BNPPRE vous propose un atelier neuf, isolé par l'extérieur, équipé d'une porte sectionnelle et porte piéton, disponible à compter du 1er mars 2024, livré brut fluides en attente. Hauteur libre : 5,70 mètres.
L'atelier se compose de 100 m² au sol et 50 m² de mezzanine. Il dispose d'une place de stationnement privative extérieure.
Poisy, Parc de Calvi.
Atelier proche toutes commodités et accès autoroutier à deux pas.
Services & prestations
Hauteurs
-
Hauteur libre : 7 mètres RDC et 5,70 au R-1
Accès véhicules
-
Accessibilité type véhicules : Moyens porteurs
Equipements
-
Charge au sol Rdc : 1T/m² (RDC) 2T/m²(R-1) 350 kg/m² (mezzanine)
-
Eclairage naturel : Latéral
-
Sols du bâtiment : Béton
Structure du bâtiment
-
Couverture : Béton
-
Murs : Béton, Isolation extérieure
Informations complémentaires
-
Bruts, fluides en attente










