




Location Local d'activité 32 773 m²
92230 Gennevilliers
32 773 m²
Divisible dès 263 m²
à partir de 190 €
HT/HC/m²/an
Disponibilité : 01/05/2027

Adrien BOUGNOUX
Description
Gennevilliers
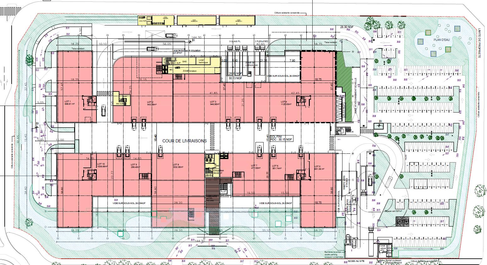
PARC D’ACTIVITES EN ETAGES
BNP PARIBAS Real Estate vous propose à la location des cellules d'activités avec bureaux d'accompagnement dans un Parc Neuf. Situé à Gennevilliers, proche des axes routiers et transports en commun. Division à partir de 263 m² environ. Livraison prévue T2 2027.
BNP PARIBAS REAL ESTATE vous propose à la location, un ensemble de 3 bâtiments en construction de locaux d'activité en RDC et en étage accessibles par rampe avec bureaux d'accompagnement d'une surface de 32 000 m² environ divisible à partir de 300 m².
Les bâtiments offriront un accès aux véhicules de livraison de type gros porteurs avec quais et portes de plain-pied en RDC et en véhicule de livraison 3.5 T à tous les niveaux en étage. Très belles prestations techniques. Ces locaux bénéficieront d'une accessibilité remarquable avec l'A86, l'A15, les quais de Seine ainsi que le périphérique parisien. Environnement tertiaire et dynamique.
Accessibilité
Accès routier : A86 ; A15 ; Quais de Seine
Gare : Gennevilliers (RER C)
Aéroport : Roissy CDG
Services / Prestations
Hauteur : entre 6.5 et 7.5 mètres sous poutres selon les niveaux.
Portes à quai et de plain-pied en RDC et plain-pieds en étage
Monte-charges de 1T.
Charge au sol : 1T / m²
Restauration : A proximité immédiate
Parking : 532
Pour toute information complémentaire, n'hésitez pas à prendre contact avec nos consultants BNP PARIBAS REAL ESTATE.
Services & prestations
Hauteurs
-
Hauteur libre : 6,90 mètre(s) en étages, 7,90 mètre(s) au RDC
Accès véhicules
-
Accessibilité type véhicules : Gros Porteurs sur RDC / 3.5 T sur les étages
Equipements
-
Charge au sol Etage : 1000,00 kg/m², 350,00 kg/m²
-
Charge au sol Rdc : 2,00 tonne(s)/m²
-
Climatisation : Réversible dans les bureaux
-
Eclairage naturel : Latéral
-
Monte-charge : 5 3 dersservent tous les étages, 2 desservent uniquement le R+2 // supportant 1 000 kg
-
Porte d'accès plain-pied : Au RDC et en étages
-
Porte d'accès à quai : 3 au RDC
-
Rampes d'accès : 2 Inclination max : 12% / Rayon de giration : 14,4 m / Largeur : 7 m
-
Source chauffage : Aérotherme électrique pour activité, Selon étude techniques à réaliser Aérothermes gaz ou autres
Type / Etat du bâtiment
-
Etat des locaux : Neuf, Rénové
Normes, Certifications et Labels
-
Certification : BREEAM
Informations complémentaires
-
Toitures Terrasses végétalisées
-
4 Ascenseurs










