




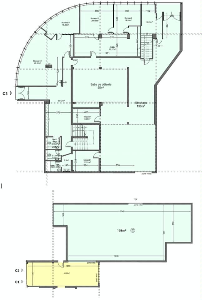
Location Local d'activité 950 m²
92000 Nanterre
950 m²
Divisible dès 220 m²
à partir de 160 €
HT/HC/m²/an
Disponibilité : Immédiate

Francois FOURNIER
Description
NANTERRE (92)
PROXIMITE LA DEFENSE - Bâtiment C
BNP Paribas Real Estate vous propose, dans un ensemble immobilier, des cellules d'activité avec bureaux d'accompagnement.
Nous vous proposons, à la location, des locaux d'activité avec bureaux d'accompagnement . Prestations techniques : charpente métallique, charge au sol, lampes et verrière. Le bien dispose d'un accès plain-pied et moyens porteurs.
Au coeur de Nanterre, les locaux sont idéalement situés au croisement des autoroutes A14 et A86. Les transports en commun desservent efficacement le site via la ligne du RER A station « Nanterre Préfecture ».
Services & prestations
Accès véhicules
-
Accessibilité type véhicules : Moyens porteurs
Equipements
-
Charge au sol Rdc : 2,00 tonne(s)/m²
-
Eclairage Bureaux : Luminaires suspendus
-
Eclairage intérieur : Lampe à sodium
-
Eclairage naturel : Verrière
-
Porte d'accès plain-pied
-
Sol bureaux : Parquet
-
Sols du bâtiment : Béton
-
Type de chauffage : Collectif Aérothermes gaz et radiateurs
Type / Etat du bâtiment
-
Etat de l'immeuble : Rénové
-
Etat des locaux : Rénové selon les lots
-
Etat du terrain : Bétonné
Structure du bâtiment
-
Charpente : Métallique
Prestations de service
-
Parking
-
Restauration : Au challenge 92 - à proximité
Aménagements
-
Locaux sociaux : Sanitaires
-
Mezzanine
Informations complémentaires
-
Escalier










