




Location Local d'activité 8 440 m²
42400 Saint-Chamond
8 440 m²
50 €
HT/HC/m²/an
Disponibilité : Immédiate

Florent VAUVERT
Description
Rue Font Rozet - Saint-Chamond (42)
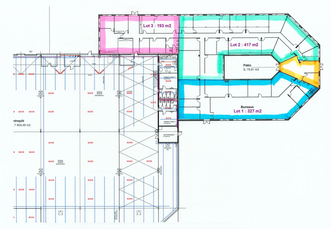
BNP PRE vous propose à la location un bâtiment d'activité traversant de 8 440 m² avec une surface de bureaux de 610 m², possibilité de réduire la surface à 193 m².
Aire de stockage extérieure ainsi que 2 aires de manœuvre.
Le bien se situe à Saint CHAMOND, disponible début Novembre 2025.
Saint-Chamond est une commune française située dans le département de la Loire en région Auvergne-Rhône-Alpes.
La ville évolue entre les pôles économiques et industriels de Lyon et de Saint-Étienne et place le commerce au coeur de sa stratégie de développement.
Services & prestations
Hauteurs
-
Hauteur libre : 6,00 mètre(s)
-
Hauteur sous porte plain-pied : 3,00 mètre(s)
Equipements
-
Fenêtres
-
Fluides en attente : Gaz
-
Porte d'accès plain-pied : 1
-
Porte d'accès à quai : 6
-
Sprinklers
Type / Etat du bâtiment
-
Etat du terrain : Goudronné
-
Immeuble indépendant
Structure du bâtiment
-
Charpente : Métallique
-
Couverture : Bac acier isolé
-
Murs : Bardage double peau
Prestations de service
-
Parking
Aménagements
-
Bureaux cloisonnés
Extérieurs
-
Aire de manoeuvre : 2 aires
-
Aire de stockage extérieure
Informations complémentaires
-
Entrepôt traversant, Possibilité d'avoir une surface de bureau de 193 m² uniquement, Toiture neuve avec étanchéité et isolation au normes actuelles.










