




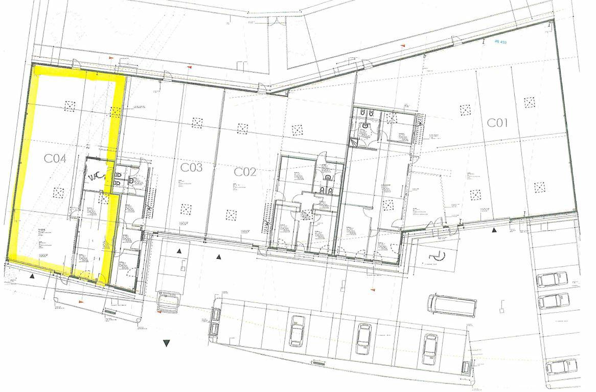
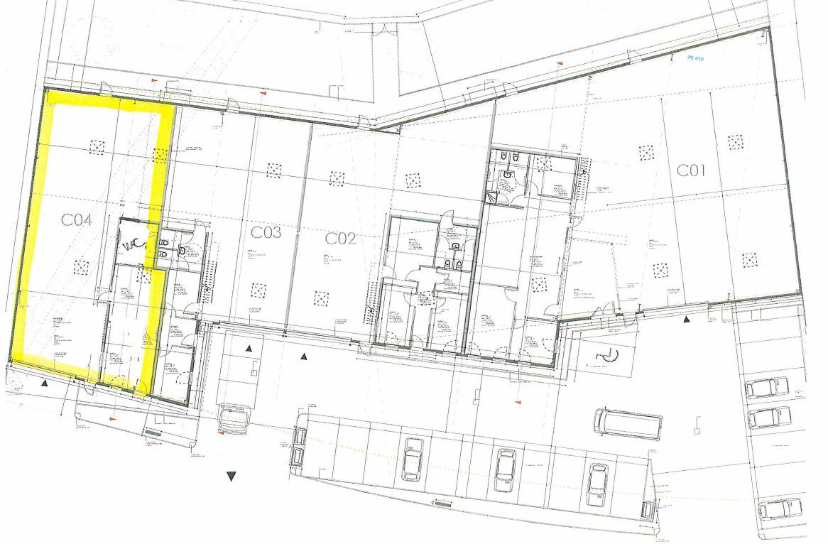
Location Local d'activité 264 m²
54850 Messein
264 m²
95 €
HT/HC/m²/an
Disponibilité : Nous consulter

Vincent BLASZCZAK
Description
A LOUER - LOCAUX D'ACTIVITÉS
MESSEIN - Réf OLACT2532175
A louer cellule d'activité de 264 m² environ composée de bureaux (vaste open-space) , d'un dépôt et d'une grande mezzanine aménageable en bureaux. L'immeuble récent, en parfait état, est située à Messein dans la ZAC du Breuil.
Climatisation dans les bureaux, porte sectionnelle (4m x 5m) et chauffage individuel au gaz dans l'atelier.
LOCATION - 264m² - MESSEIN (54)
Atouts de l'offre :
- Dépôt de 172 m²
- Porte sectionnelle
- Mezzanine aménageable
- Bureaux climatisés
- Chauffage au gaz
Situation de l'offre :
Local d'activité de 264 m² dans un environnement agréable au sud de la métropole Nancéienne.
La ZAC du Breuil, à vocation industrielle à MESSEIN, s'étend sur 18 hectares et accueille plus de 60 entreprises. Elle est accessible depuis l'A330 et la gare de Nancy se trouve à 10 km.
Zone à taille humaine dans un environnement de qualité, des atouts considérables pour ce parc d'activités qui ne cesse de se développer économiquement.
Par le bus : Ligne de bus CC Moselle et Madon: 3 lignes régulières et gratuites, avec une desserte du parc industriel
Par le train : Gare de Pont-saint-Vincent à 1,5 Km à pied.
Restauration à proximité : Parc d'activités du Breuil, Xeuilley, Neuves-Maisons de la restauration rapide à la gastronomie Lorraine.
Vous avez un projet d'implantation dans ce secteur ? Appelez-nous pour l'étudier ensemble.
Services & prestations
Hauteurs
-
Hauteur libre : 6,00 mètre(s)
Accès véhicules
-
Accessibilité type véhicules : Tous porteurs
Equipements
-
Climatisation : Réversible Bureaux climatisés
-
Câblage informatique : RJ 45
-
Distribution chauffage : Individuel gaz dans l'atelier
-
Eclairage intérieur : Néon
-
Faux plafond
-
Plinthes techniques périphériques
-
Production climatisation : Autonome
-
Sol bureaux : Carrelage
-
Sols du bâtiment : Béton
Type / Etat du bâtiment
-
Etat de l'immeuble : Récent
Structure du bâtiment
-
Charpente : Métallique
-
Couverture : Bac acier isolé
Prestations de service
-
Parking
Aménagements
-
Aménagement des bureaux : Cloisonnés/Ouverts
-
Sanitaires : Privatif(s)
Informations complémentaires
-
Porte sectionnelle










