




Location Local d'activité 491 m²
57070 Metz
491 m²
110 €
HT/HC/m²/an
Disponibilité : Immédiate

Guillaume Foechterle
Description
METZ ACTIPOLE (REF OLACT 25 31 301)
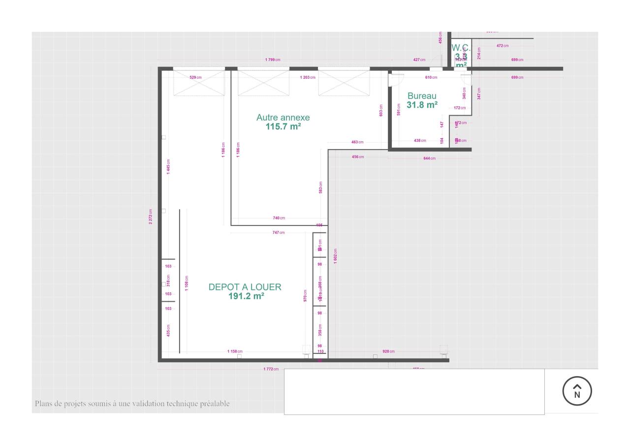
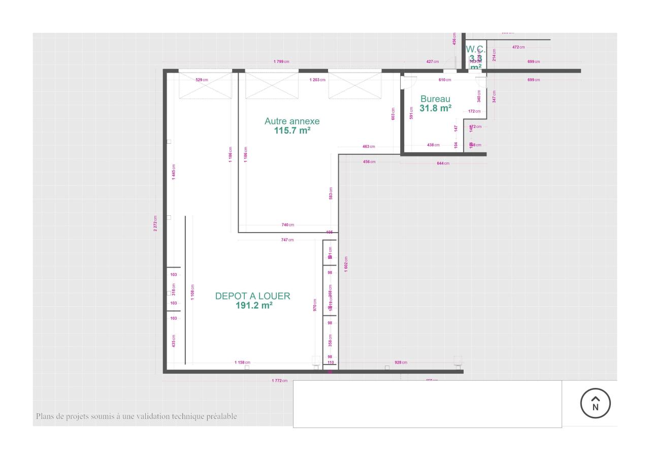
BNPPRE ADVISORY vous propose des locaux d'activité composés de dépôt, locaux sociaux et bureaux à la location.
METZ ACTIPOLE - 490 M² DE LOCAUX D'ACTIVITE ET BUREAUX - LOCATION
Vous cherchez des locaux récents à louer sur la zone ACTIPOLE de Metz ?
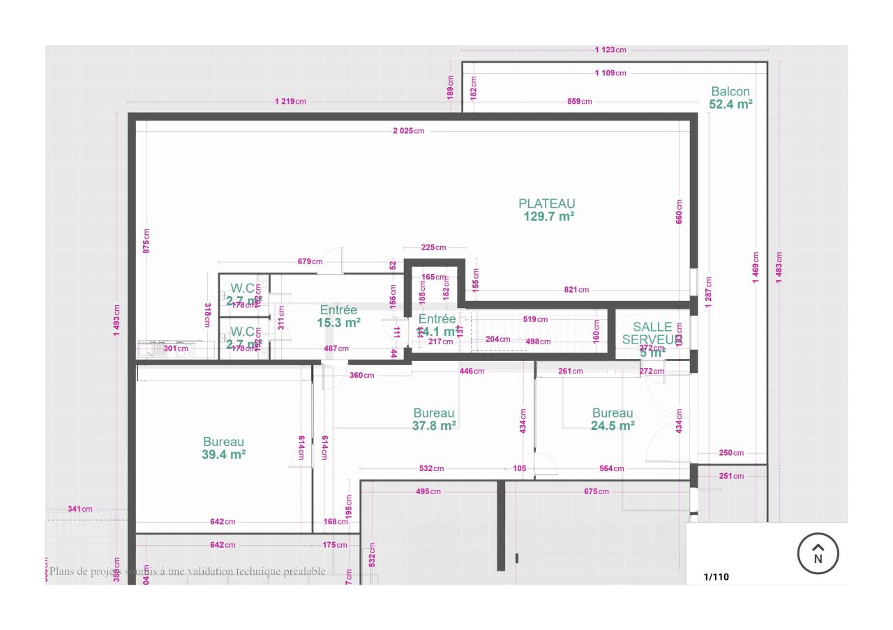
Nous vous proposons de louer des locaux d'activité composés d'un dépôt de 190 m² et 35 m² de bureaux et locaux sociaux en rez de chaussée et un plateau de bureaux en R+1 de 265 m² environ.
Caractéristiques
Charpente métallique
Dalle béton
Hauteur libre 7.5 m
Porte sectionnelle
Quai
Bureaux cloisonnés
Open space
Locaux sociaux
Situé sur la zone Actipôle de Metz, le bâtiment bénéficie d'une excellente accessibilité.
Accessibilité
A4/431 rocade Sud
Conseiller en Immobilier d'Entreprise, BNP PARIBAS REAL ESTATE TRANSACTION vous accompagne dans votre recherche de bureaux, locaux d'activité et entrepôts logistiques en Moselle, à la location et à la vente.
Services & prestations
Hauteurs
-
Hauteur libre : 7,50 mètre(s)
Equipements
-
Eclairage Bureaux : Luminaires encastrés
-
Faux plafond : Dal. fibres minéral.
-
Fenêtres
-
Porte d'accès plain-pied : 1
-
Porte d'accès à quai
-
Sol bureaux : Carrelage
-
Sols du bâtiment : Béton lisse
Type / Etat du bâtiment
-
Etat de l'immeuble : Neuf
-
Etat des locaux : Neuf
Structure du bâtiment
-
Charpente : Métallique










