




Location Local d'activité 913 m²
57050 Metz
913 m²
Divisible dès 259 m²
à partir de 110 €
HT/HC/m²/an
Disponibilité : Immédiate

Guillaume Foechterle
Description
METZ DEUX FONTAINES - 910 M² A LOUER (réf OLACT 24 23 183)
BNP PARIBAS REAL ESTATE vous propose au sein de la zone d'activités des Deux Fontaines, des locaux d'activités / commerciaux à proximité immédiate de l'accès à l'autoroute A31, à la location.
LOCAUX D'ACTIVITE / COMMERCIAUX - A LOUER - METZ DEUX FONTAINES
Vous cherchez des locaux parfaitement adaptés à vos besoins et votre activité ?
Définissons ensemble vos besoins afin que vos locaux correspondent totalement à votre activité pour un cadre idéal propice au bon développement de votre activité et à la pleine performance de votre entreprise.
Le bâtiment sera construit isolé aux normes RT2020 et sera livré clôt couvert, dalle terminée, électricité et éclairage LED sur la partie dépôt.
Les bureaux et locaux sociaux seront à créer avec possibilité de le faire par le bailleur moyennant surloyer.
Caractéristiques
Hauteur utile sous poutre : 6m25 7m
Portance de 22,5 mètres sans poteaux
Bâtiment accessible aux PMR (Personnes à Mobilité Réduite)
Site entièrement clôturé avec portail
Contrôle d'accès en dehors des heures de bureau pour les différents usagers du site
- Moyennant surloyer, possibilité de créer des bureaux, locaux sociaux et mezzanine de stockage pour augmenter surface exploitable
- Belle surface extérieure macadamisée à neuf pour circulation et manoeuvres
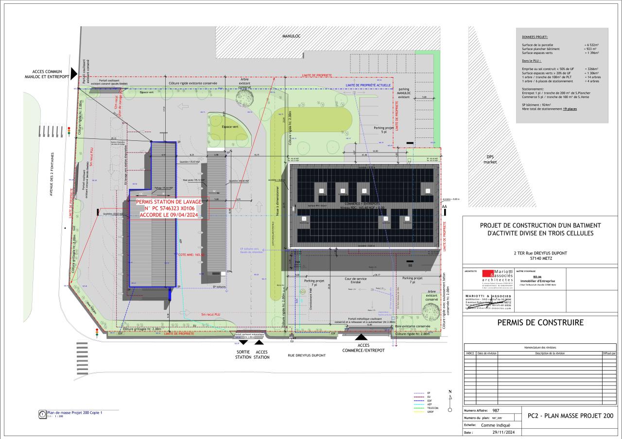
Cellule 1
Vocation commerciale au 2ème rang de l'Avenue des Deux Fontaines (15 000 passages / j)
391m² de surface au sol dont :
299m² de surface de vente
92m² de bureaux, locaux sociaux, réserve de plain-pied
15 places de parking voitures dont 1 PMR partagée et 2 pré-équipées pour borne électrique
Puissance électrique maximale de 59 kVa
Puissance gaz maximale de 108 kVa
Classement ERP (Etablissement Recevant du Public) 5ème catégorie
150 HT/HC/m²/an
Cellule 2
Vocation activité / stockage
259m² de surface totale de stockage
2 places de parking voitures
Puissance électrique maximale de 36 kVa
Puissance gaz maximale de 36 kVa
110 HT/HC/m²/an
Cellule 3
Vocation activité / stockage
263m² de surface totale de stockage
2 places de parking voitures
Puissance électrique maximale de 36 kVa
Puissance gaz maximale de 72 kVa
110 HT/HC/m²/an
Accessibilité
Autoroute A31 : une minute ~
Autoroute A4 : quelques minutes
Transports en commun :
Gare TGV METZ et Pôle multimodal : 4 km
BUS
LEMET ligne MA Arrêt INTENDANTS JOBA
Autocar Fluo 57 - 57R049 - Arrêt INTENDANTS JOBA
Conseiller en Immobilier professionnel, BNP PARIBAS REAL ESTATE TRANSACTION accompagne les entreprises dans la recherche de bureaux, locaux d'activité, dépôts et entrepôts logistiques, à la location et à la vente, à METZ et en MOSELLE depuis plus de 40 ans.
Services & prestations
Type / Etat du bâtiment
-
Etat des locaux : Neuf










