




Location Local d'activité 750 m²
57140 Woippy
750 m²
75 €
HT/HC/m²/an
Disponibilité : Immédiate

Gauthier DENOYELLE
Description
WOIPPY BELLEVUE
LOCAUX ET BUREAUX - À LOUER (REF OLACT 25 30 220)
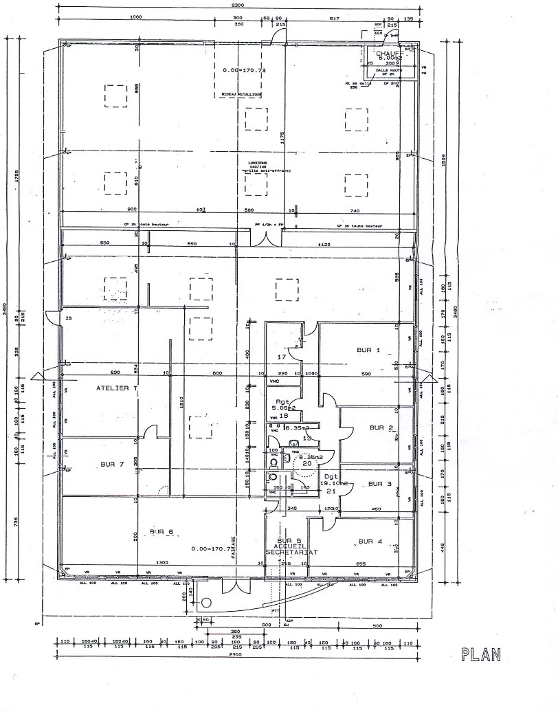
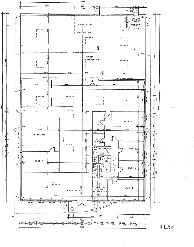
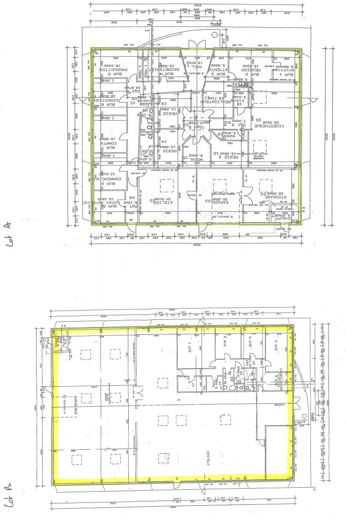
BNP PARIBAS REAL ESTATE ADVISORY vous propose à la location, un local d'activité d'une surface de 750 m². C'est un bâtiment mixte, une partie activité et une partie tertiaire.
WOIPPY BELLEVUE - 750 M² LOCAUX D'ACTIVITE ET BUREAUX - A LOUER
Nous vous proposons au coeur de la zone Saint Agathe Bellevue de Woippy, un bâtiment de 750 m² pour un loyer annuel Hors Charges de 56 400 HT.
Caractéristiques
Composé d'un espace de bureaux et d'un espace dépôt, le bâtiment comprend :
une entrée
7 bureaux
une cuisine
2 blocs sanitaires (dont un aux normes PMR)
un local archive
un espace central
un dépôt avec portes sectionnelles.
Au coeur de la zone Sainte Agathe Bellevue de Woippy le bâtiment profite d'une belle accessibilité aux autoroutes A4 et A31 situés à quelques minutes seulement.
Woippy est situé au nord de Metz à quelques kilomètres du centre-ville, la zone ayant pour vocation les Activités industrielles, artisanales, commerciales et services aux entreprises.
Accessibilité
Autoroutes A4 et A31
A proximité immédiate de la zone Euromoselle, de Maizières, d'Ennery (Garolor) et de la croix d'Hauconcourt (croisement des autoroutes A31 et A4).
Réseau de bus et Mettis
Réseau autoroutier : Metz - Paris en 3h, Strasbourg en 1h30 et Luxembourg en 45 min
Gare de triage à proximité
Conseiller en Immobilier professionnel, BNP PARIBAS REAL ESTATE TRANSACTION accompagne les entreprises dans la recherche de bureaux, locaux d'activité, dépôts et entrepôts logistiques, à la location et à la vente, à METZ et en MOSELLE depuis plus de 40 ans.
Services & prestations
Equipements
-
Porte d'accès plain-pied : Sectionnelle
-
Type de chauffage : Central gaz
Type / Etat du bâtiment
-
Etat des locaux : Rénové
Structure du bâtiment
-
Charpente : Métallique
-
Couverture : Bac acier + isolation
Prestations de service
-
Parking : + clôture + portail élect.
Aménagements
-
Bureaux cloisonnés
-
Sanitaires
Informations complémentaires
-
Cuisine










