




Location Local d'activité 1 121 m²
59223 Roncq
1 121 m²
Divisible dès 528 m²
70 €
HT/HC/m²/an
Disponibilité : Immédiate

Hadrien NORY
Description
RONCQ - PARC DU LION
BNP PARIBAS REAL ESTATE Lille vous propose à la location 3 cellules d'activités situé à RONCQ.
Le Parc du Lion est situé sur la Commune de RONCQ. Accès direct à l’Autoroute A22 (Lille-Gand), échangeur de Roncq. A proximité immédiate du centre commercial Auchan Roncq.
Installer vos locaux à Roncq présente plusieurs avantages. La ville de Roncq bénéficie d'une situtation géographique stratégique, proche des grands axes routiers et des frontières internationales.
Roncq dispose d'infrastructures modernes et d'un tissu économique dynamique, avec de nombreuses entreprises déjà implantée.
Ce site, ancien site industriel totalement repensé et transformé, s'adapte aux besoins actuels des futurs preneurs.
Après une rénovation profonde, le Parc des Lions est un très beau site modulable et flexible, qui propose des surfaces d'activité et de bureaux ajustables pour répondre aux besoins de l'utilisateur. Il est également possible de regrouper plusieurs cellules.
Chaque lot dispose d'une porte sectionnelle ce qui permet aux véhicules de livraison (tels que les camions et les fourgonnettes), de se garer directement devant les portes de l'entrepôt et ainsi faciliter le chargement et le déchargement.
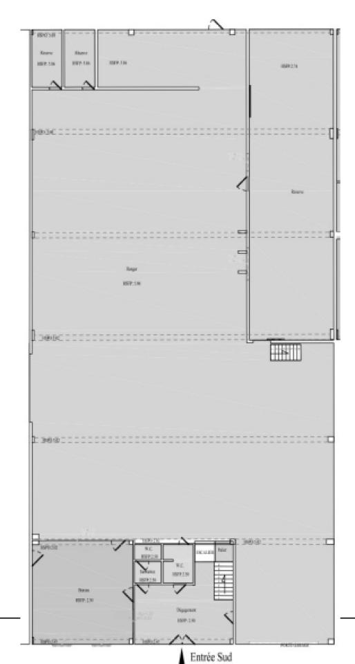
Dans ce contexte, BNPPRE vous propose à la location 3 cellules d'activités :
Lot 14
Surface disponible : 699 m²
Bureaux : 565 m²
Entrepôt : 134 m²
Loyer annuel hors taxes hors charges : 48 930 HT/HC/an
Lot 2
Surface disponible : 593 m²
Entrepôt : 463 m² + Bureau 130 m²
Loyer annuel hors taxes hors charges : 41 510 HT/HC/an
Lot 3
Surface disponible : 528 m²
Entrepôt : 528 m²
Loyer annuel hors taxes hors charges : 36 960 HT/HC/an
Disponibilité immédiate
Contactez nous pour réserver votre espace dans notre bâtiment d'activité. Une opportunité à ne pas manquer pour donner un nouvel élan à votre entreprise !
Besoin d'un local industriel/ artisanal, d'un entrepôt ou d'un foncier à louer ou à vendre dans le Nord Pas de Calais ? Nos solutions de location et de vente de surfaces industrielles, de hangars ou de cellules de stockage dans la métropole lilloise répondent à vos attentes. Découvrez nos surfaces/ offres et installez vous rapidement au sein de votre futur parc d'activités.
Toutes nos offres sur https://www.bnppre.fr/local-activite/nord-59/
Services & prestations
Hauteurs
-
Hauteur libre : 5,00 mètre(s)
Equipements
-
Climatisation : Réversible
-
Câblage informatique
-
Eclairage intérieur : Néon Zénithal, trappes de désenfumage
-
Plinthes techniques périphériques
-
Porte d'accès plain-pied : 1 par lot
-
Sol bureaux : Moquette
-
Sols du bâtiment : Béton
-
Source chauffage : Electrique
Structure du bâtiment
-
Charpente : Béton
-
Couverture : Bac acier isolé multicouches
-
Murs : Béton Béton gravier lavé et bardage double peau laqué au 1er étage
Aménagements
-
Hall d'accueil
-
Sanitaires
Informations complémentaires
-
Chauffage electrique










