




Location Local d'activité 387 m²
59223 Roncq
387 m²
70 €
HT/HC/m²/an
Disponibilité : Immédiate

Albane AMOROS
Description
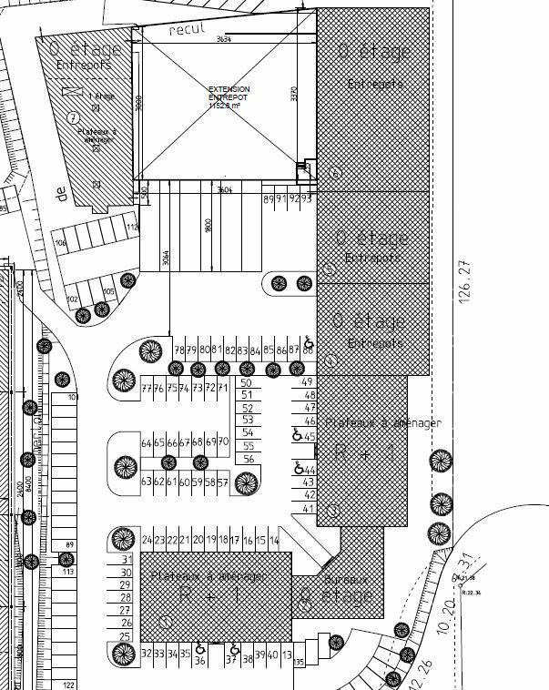
RONCQ / CIT - A LOUER
Découvrez dès maintenant à la location un entrepôt de 387 m².
Le Centre International de Transport à Roncq est un carrefour logistique majeur en Europe. Avec ses installations modernes et sa position stratégique, il facilite les échanges commerciaux nationaux et internationaux. Doté d'une infrastructure de pointe, le centre offre des services de stockage, de distribution et de transit, répondant aux besoins des entreprises du monde entier. Sa proximité avec les principales voies de transport, notamment autoroutes et voies ferrées, en fait un choix privilégié pour les opérations logistiques.
Situé dans une zone à fort potentiel économique, notre local d'activité offre un emplacement stratégique qui permettra à votre entreprise de prospérer.
BNP PARIBAS REAL ESTATE vous propose à la location cette cellule d'activité de 387 m²
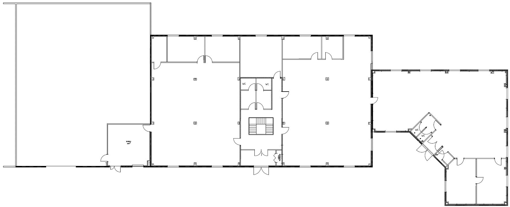
L'entrepôt possède 2 portes sectionnelles.
Disponibilité immédiate
Loyer entrepôt : 70 m² HT
Pour découvrir tout ce que notre local d'activité peut offrir à votre entreprise, planifiez dès aujourd'hui une visite. Notre équipe est là pour répondre à toutes vos questions et trouver l'espaces de stockage en fonction de vos besoins.
Besoin d'un local industriel/ artisanal, d'un entrepôt ou d'un foncier à louer ou à vendre dans le Nord Pas de Calais ? Nos solutions de location et de vente de surfaces industrielles, de hangars ou de cellules de stockage dans la métropole lilloise répondent à vos attentes. Découvrez nos surfaces/ offres et installez vous rapidement au sein de votre futur parc d'activités.
Retrouvez toutes nos offres de locaux d'activité sur https://www.bnppre.fr/local-activite/nord-59/
Services & prestations
Hauteurs
-
Hauteur libre : 7,00 mètre(s) 7 à 8 mètres de hauteur utile
Equipements
-
Charge au sol Rdc : 2,50 tonne(s)/m²
-
Climatisation : Réversible
-
Eclairage intérieur : Néon
-
Eclairage naturel : Skydomes
-
Faux plafond
-
Fenêtres : Double exposition
-
Porte d'accès plain-pied : 4x4.30m
-
Sol bureaux : Moquette/Carrelage
-
Sols du bâtiment : Béton
-
Source chauffage : Electrique
Type / Etat du bâtiment
-
Etat de l'immeuble : Etat d'usage
-
Etat des locaux : Rénové
-
Immeuble indépendant : Entrée indépendante
Structure du bâtiment
-
Murs : Bardage double peau
Aménagements
-
Accès Pers. Mobilité Réduite
Normes, Certifications et Labels
-
Catégorie ERP : ERP Possible










