




Location Local d'activité 359 m²
59650 Villeneuve-d'Ascq
359 m²
100 €
HT/HC/m²/an
Disponibilité : 01/09/2026

Albane AMOROS
Description
VILLENEUVE D'ASCQ / PARC DE LA PLAINE
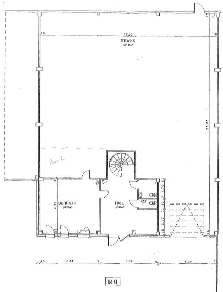
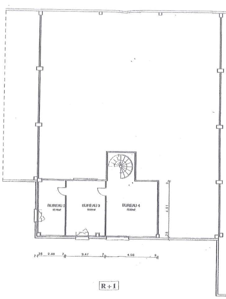
À LOUER – ENTREPÔT DE 359 m³ – VILLENEUVE-D’ASCQ
BNP Paribas Real Estate Lille vous propose à la location un entrepôt d'une capacité de 359 m³, idéalement situé à Villeneuve-d'Ascq, au coeur d'une zone d'activités dynamique et facilement accessible.
Surface disponible : 359 m³
Accès : Facilité d'accès pour véhicules utilitaires et poids lourds
Porte d'accès : Grande hauteur permettant le chargement/déchargement aisé
Structure : Bâtiment fonctionnel et sécurisé
Hauteur sous plafond adaptée au stockage
Situé à Villeneuve-d'Ascq, à proximité immédiate des axes routiers majeurs, le site bénéficie d'une excellente desserte (autoroutes, transports en commun), facilitant les flux logistiques et les déplacements.
Pour toute information complémentaire ou pour organiser une visite, merci de contacter BNP Paribas Real Estate










