




2 Rue Augustin Fresnel
69680 Chassieu
2 250 m²
Divisible dès 310 m²
à partir de 108 €
HT/HC/m²/an
Disponibilité : Immédiate

Bory THONGDENG
Description
Chassieu (69)
Locaux d'activités à louer - Chassieu dans un parc d'activités dédié stockage, production. Bâtiment modulaire pouvant accueillir de grande surface comme des petites cellules avec des possibilité de regroupement ou de location de la totalité du bâtiment.
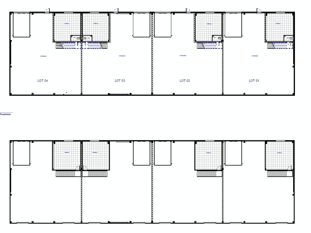
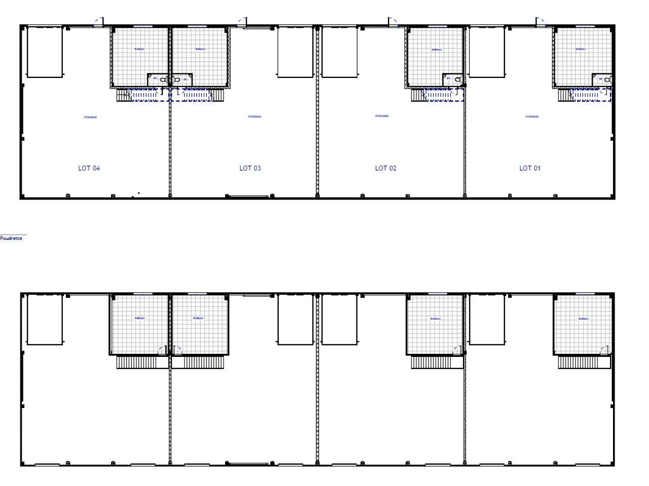
Le bâtiment A accueille 4 lots de 220 m² d'activités et 90 m² de bureaux chacune. Le bâtiment B quand à lui accueille 3 lots dont une à 320 m² d'activités. 6/7 places de stationnements par lots.
Déjà livré et disponible immédiatement.
Chassieu (69680) Un pôle économique stratégique à l'est de Lyon pour implanter vos locaux d'activités.
A seulement 15 minutes du centre de Lyon et directement connectée à l'A43, à la rocade Est et à l'aéroport Lyon-Saint-Exupéry, Chassieu se positionne comme l'un des territoires économiques majeurs de la Métropole de Lyon. La commune accueille de nombreuses entreprises dans des secteurs variés : industrie, service, logistique, événementiel et haute technologie.
Dotée de parcs d'activités reconnus comme Mi- Plaine ou Eurexpo, Chassieu constitue un choix de premier ordre pour les entreprises à la recherche de visibilité, de performance logistique et d'un écosystème dynamique.
Choisir Chassieu, c'est positionner votre entreprise au coeur d'un territoire performant, bien connecté et en constante évolution au sein de la métropole lyonnaise.
Services & prestations
Hauteurs
-
Hauteur libre : 6,06 mètre(s)
Accès véhicules
-
Accessibilité type véhicules : Tous porteurs
Equipements
-
Climatisation : Réversible
-
Eclairage naturel : Panneaux translucid.
-
Fenêtres
-
Porte d'accès plain-pied : 1 1 porte électrique 3.5X4.5m
-
Puissance électrique : Tarif Bleu
-
Sol bureaux : Carrelage Carrelage RDC et Dalle PVC R+1
-
Sols du bâtiment : Béton
Type / Etat du bâtiment
-
Etat de l'immeuble : Neuf
-
Etat des locaux : Neuf
-
Etat du terrain : Goudronné
-
Immeuble indépendant
Structure du bâtiment
-
Charpente : Métallique
-
Murs : Bardage double peau
Prestations de service
-
Parking : 7 Places
-
Sécurité : PC Sécurité, Vidéo-surveillance
Aménagements
-
Aménagement des bureaux : Espaces Ouverts
-
Locaux sociaux : Sanitaires
-
Sanitaires : 2 Privatif(s) 1 WC PMR et 1 WC atelier
Informations complémentaires
-
RT 2012
-
Fourreau IRVE charge normale - Porte tri-phasée










