




Location Local d'activité 822 m²
69400 Gleizé
822 m²
Divisible dès 220 m²
100 €
HT/HC/m²/an
Disponibilité : Immédiate

Bory THONGDENG
Description
GLEIZE (69)
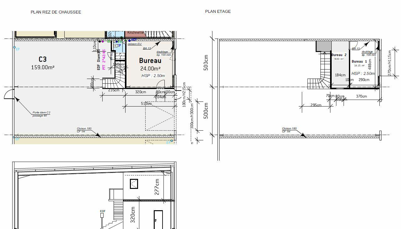
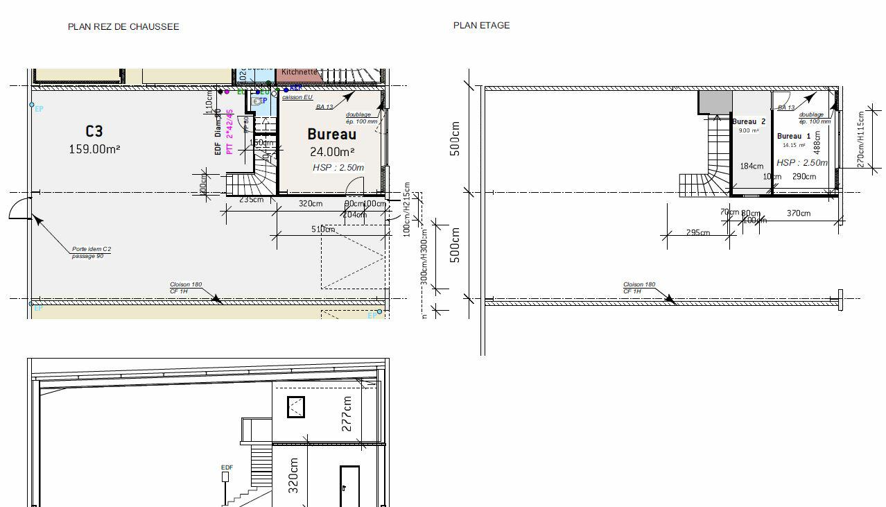
Sur Gleizé dans la nouvelle ZAC Epinay, à proximité du futur centre commercial, nous vous proposons une cellule en location de 200 m² environ.
Disponible fin du premier semestre 2024, un nouveau bâtiment d'activité divisible en deux cellules à partir de 250 m².
Prestations à définir selon les besoins de l'occupant.
Gleizé est une commune limitrophe de Villefranche-sur-Saône à environ 30 kilomètres au nord de Lyon.
Services & prestations
Hauteurs
-
Hauteur libre : 6,00 mètre(s)
Accès véhicules
-
Accessibilité type véhicules : Camionnettes
Equipements
-
Fluides en attente : Gaz
-
Porte d'accès plain-pied : 1
-
Sols du bâtiment : Béton
Type / Etat du bâtiment
-
Etat de l'immeuble : Neuf
-
Etat des locaux : Neuf
-
Etat du terrain : Mixte
-
Immeuble copropriété
Structure du bâtiment
-
Charpente : Métallique
-
Couverture : Bac acier isolé
Prestations de service
-
Parking : 4 Places
-
Sécurité : Portail / Entrée
Aménagements
-
Mezzanine
Extérieurs
-
Eclairage extérieur : Halogène
Informations complémentaires
-
Fluide en attente : Électricité, Livré brut, en attente fluide et ouverture fenêtre
-
Loyer cellule aménagée : 35 580 € HT/an
-
Oui










