




14 Rue André Sentuc
69190 Saint-Fons
744 m²
97 €
HT/HC/m²/an
Disponibilité : Immédiate

Amin BOUTCHAR
Description
Vénissieux (69)
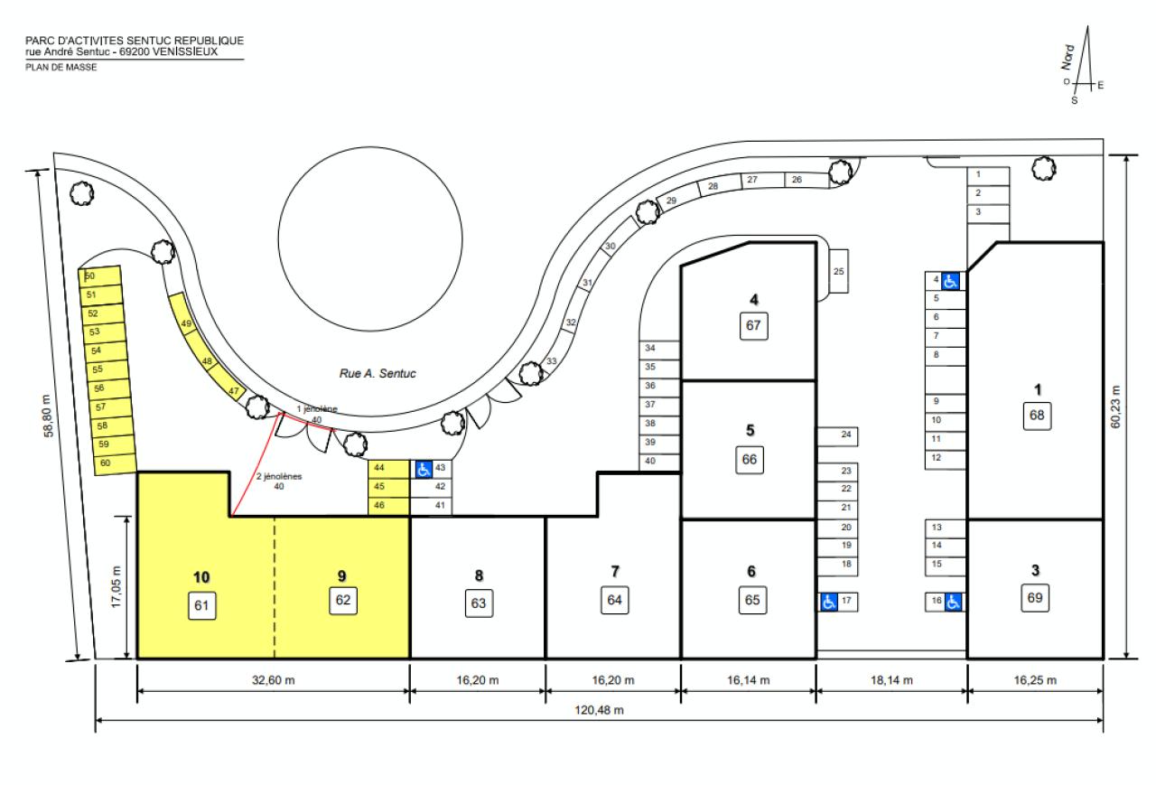
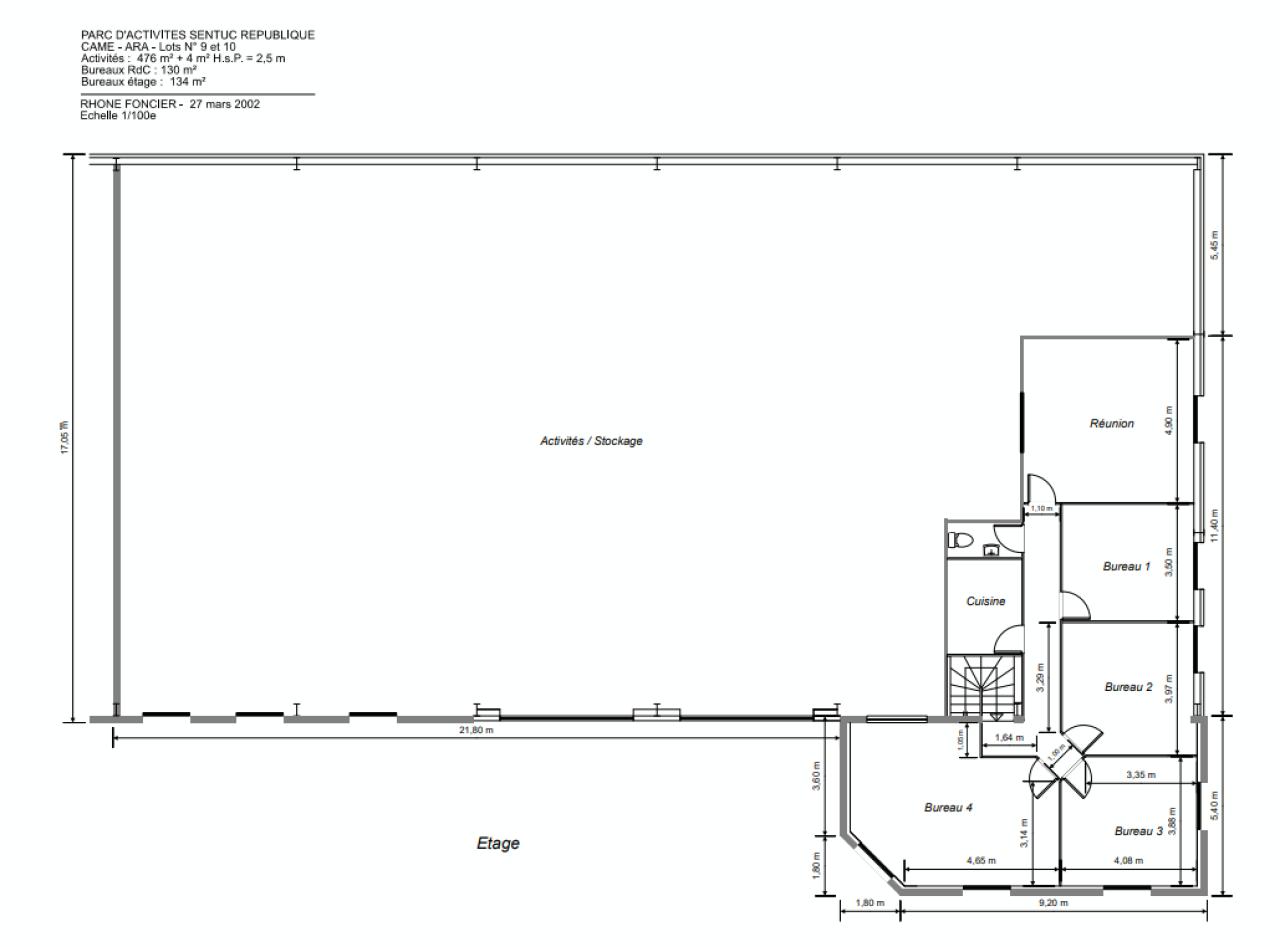
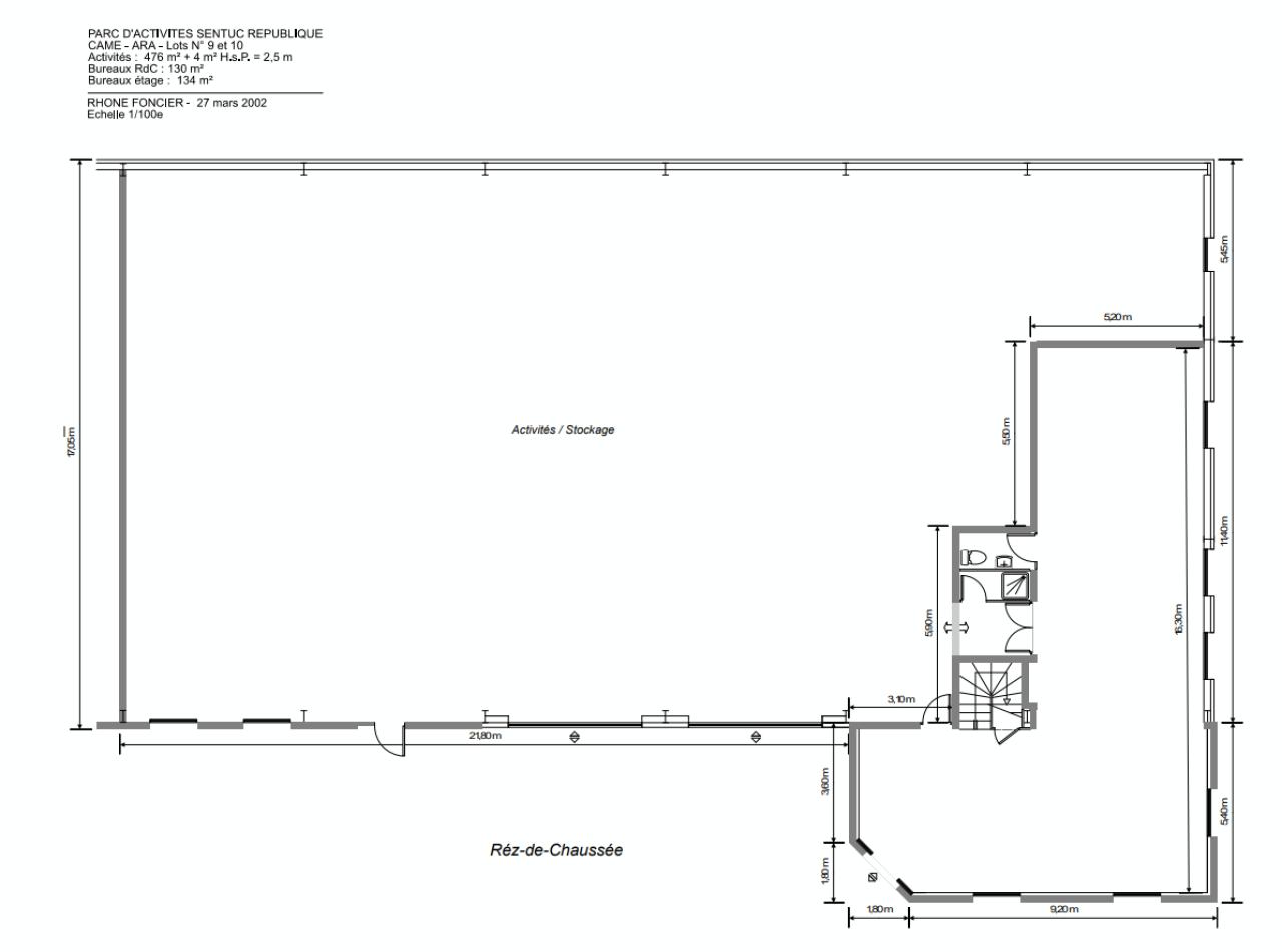
BNP PRE vous propose à la location un bâtiment d'activité situé à Vénissieux (69). Bien situé. Proche des grands axes routiers D383, 307 et Boulevard périphérique. Ce local d'activité disponible à la location immédiatement : 480 m² d'atelier ; 284 m² de bureaux répartis sur deux niveaux. BNP PRE vous accompagne dans tous vos projets. A votre disposition.
Vénissieux (69200) Un pôle industriel et logistique majeur au coeur de la Métropole de Lyon
Située au sud-est de Lyon, Vénissieux est l'un des territoires économiques les plus puissants de la Métropole de Lyon, avec une forte concentration d'activités industrielles, logistiques, artisanales et tertiaires. Bénéficiant d'un maillage exceptionnel d'infrastructures (périphérique, A7, A43, A46, tramway, métro, ligne ferroviaire), la commune offre une accessibilité optimale pour les entreprises et les collaborateurs.
Avec des zones d'activités emblématiques, la ville accueille un tissu dense d'entreprises de toutes tailles, de la PME aux grands groupes internationaux.
Implanter votre activité à Vénissieux, c'est rejoindre un territoire robuste, connecté et résolument tourné vers l'industrie de demain.
Services & prestations
Hauteurs
-
Hauteur libre : 6,00 mètre(s)
Accès véhicules
-
Accessibilité type véhicules : Tous porteurs
Equipements
-
Climatisation : Réversible
-
Câblage informatique
-
Eclairage Bureaux : Luminaires encastrés
-
Eclairage intérieur : Halogène
-
Eclairage naturel : Skydomes
-
Faux plafond : Dal. fibres minéral.
-
Fenêtres
-
Plinthes techniques périphériques
-
Puissance électrique : Tarif Bleu
-
Sol bureaux : Carrelage
-
Sols du bâtiment : Béton
Type / Etat du bâtiment
-
Etat de l'immeuble : Seconde main
-
Etat du terrain : Goudronné
-
Immeuble copropriété
Structure du bâtiment
-
Charpente : Métallique
-
Couverture : Bac acier non isolé
-
Murs : Parpaings
Prestations de service
-
Parking : 17 Places
Aménagements
-
Aménagement des bureaux : Espaces Ouverts
-
Mezzanine
-
Sanitaires
Extérieurs
-
Aire de manoeuvre










