




101 Rue du Dauphiné
69800 Saint-Priest
3 827 m²
106 €
HT/HC/m²/an
Disponibilité : Immédiate

Florent VAUVERT
Description
SAINT-PRIEST (69)
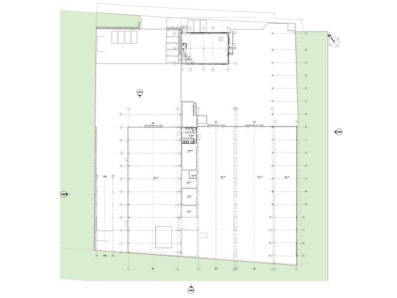
Nous vous proposons, à la vente et à la location, un ensemble immobilier neuf de 3 827 m² comprenant des locaux d'activité et des bureaux . Il dispose de 7 ponts roulants.
L'entrepôt bénéficie d'un positionnement stratégique qui lui permet d'être dans une zone d'activité dynamique aux portes de Lyon.
Disponibilité : Juillet 2024
Située à la périphérie est de Lyon, Saint-Priest est une commune dynamique et en pleine expansion, offrant un cadre idéal pour le développement de votre activité professionnelle. Avec un accès direct aux principaux axes autoroutiers (A43 et A46), Saint-Priest représente un point de jonction stratégique pour les entreprises souhaitant faciliter leurs opérations logistiques et améliorer leur accessibilité.
Notre ensemble immobilier disponible à la vente et à la location bénéficie d'une position privilégiée au cœur d'une zone industrielle réputée, entourée par de nombreuses entreprises innovantes et des services variés.
Pour plus d'informations n'hésitez pas à nous contacter.
Services & prestations
Equipements
-
Pont roulant : 7 ( 3T / 4T / 5T / 7,5T / 9,5T / 15T / 20T )
Informations complémentaires
-
Puissance du transformateur : 250Kva / Tension primaire : 20KV / Tension secondaire : 237KV, Terrain : 7 348 m²










