




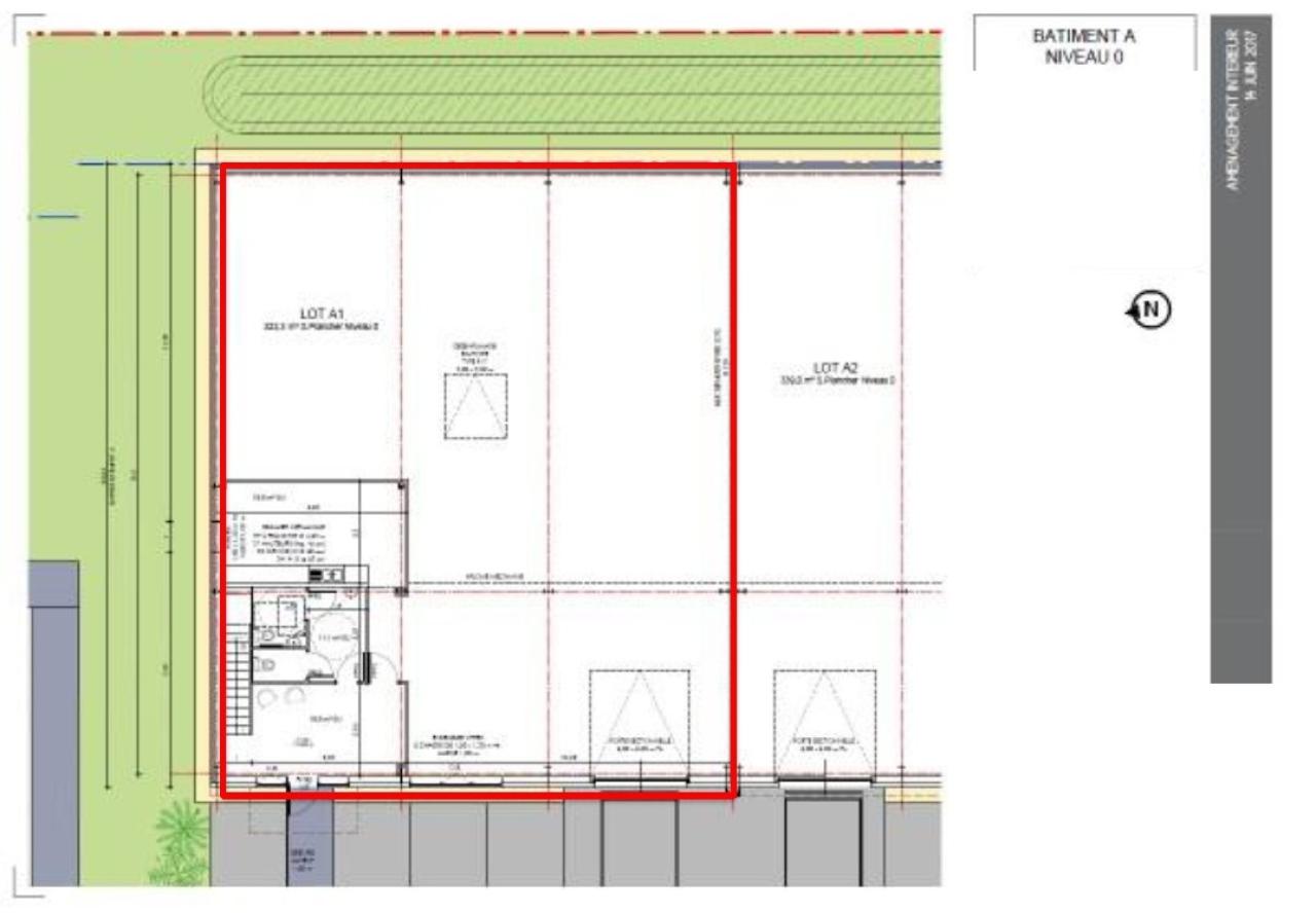
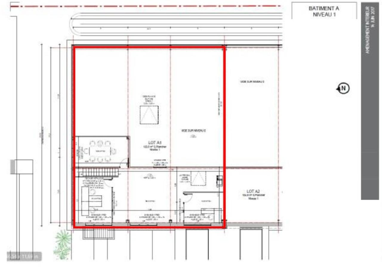
Location Local d'activité 442 m²
77170 Servon
442 m²
115 €
HT/HC/m²/an
Disponibilité : 01/12/2026

Baptiste QUILGARS
Description
SERVON (77)
A Louer
BNP PARIBAS REAL ESTATE vous propose, à la Location, une cellule d'activité avec bureaux d'accompagnement, disponible à Servon.
Le site bénéficie de 7 emplacements de parkings.
Le bien est situé à proximité des axes routiers N19 et N104.
Services & prestations
Hauteurs
-
Hauteur libre : 7,00 mètre(s)
Accès véhicules
-
Accessibilité type véhicules : Tous porteurs
Equipements
-
Charge au sol Etage : 500,00 kg/m²
-
Charge au sol Rdc : 3,00 tonne(s)/m²
-
Climatisation
-
Câblage informatique
-
Eclairage Bureaux : Luminaires encastrés LED
-
Eclairage intérieur : LED
-
Eclairage naturel : Skydomes
-
Faux plafond
-
Fenêtres
-
Plinthes techniques périphériques
-
Porte d'accès plain-pied : 1
-
Revêtement mural
-
Sols du bâtiment : Résine
Structure du bâtiment
-
Couverture : Bac acier isolé
-
Murs : Bardage double peau
Aménagements
-
Aménagement des bureaux : Cloisonnés/Ouverts
-
Hall d'accueil : Indépendant
-
Locaux sociaux : Sanitaires
-
Sanitaires : PMR
Informations complémentaires
-
Coin cuisine










