




Location Local d'activité 1 856 m²
95610 Éragny
1 856 m²
Divisible dès 371 m²
à partir de 106 €
HT/HC/m²/an
Disponibilité : 12 mois après accord

Mathis RAYNAL
Description
ERAGNY SUR OISE
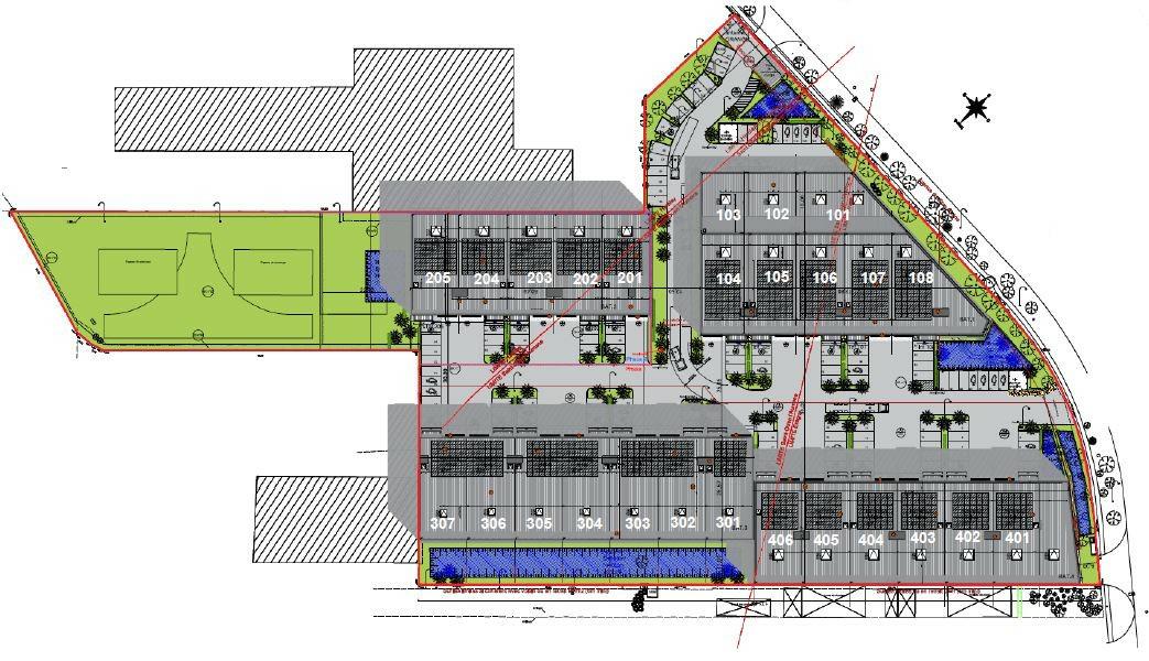
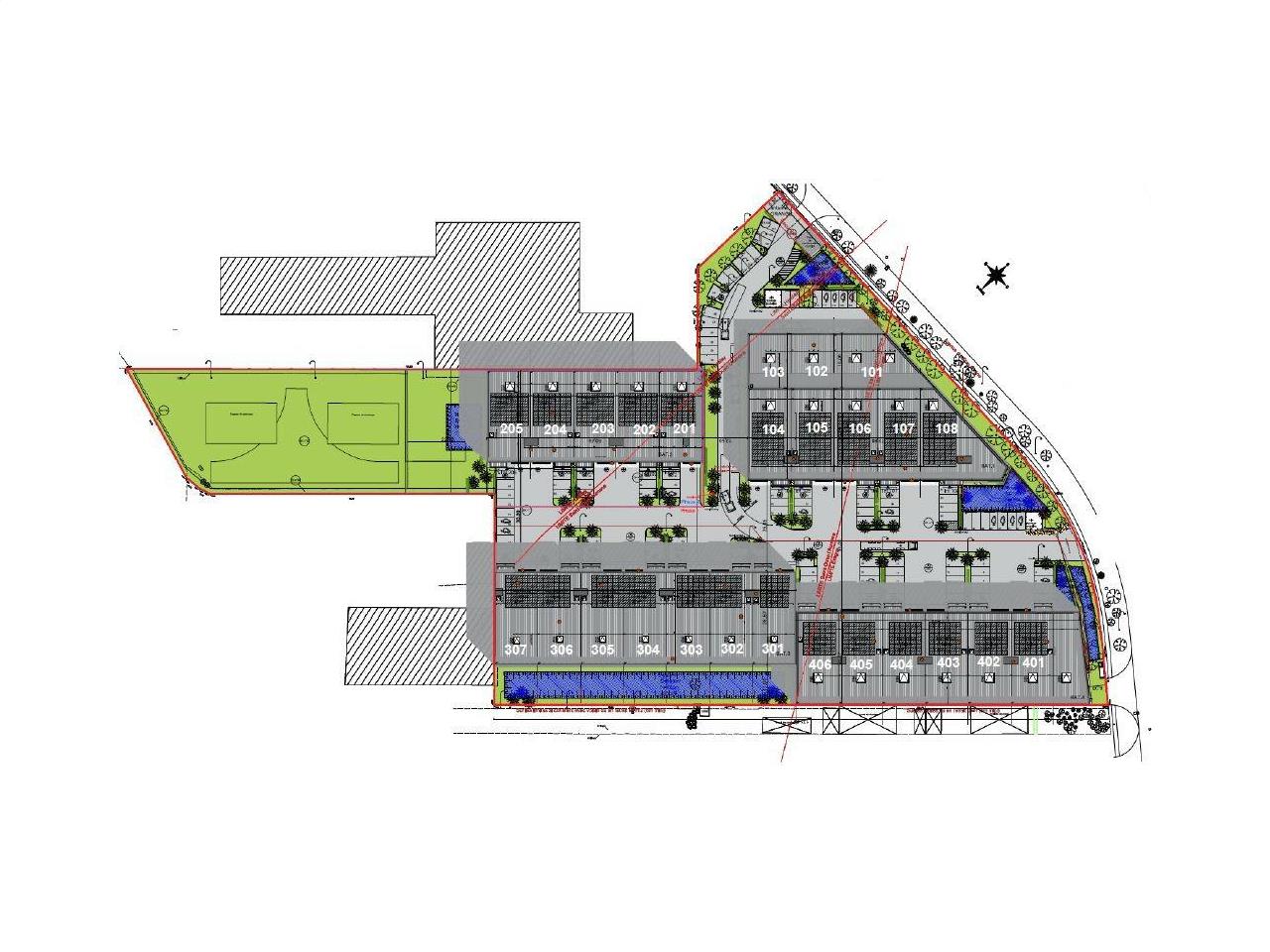
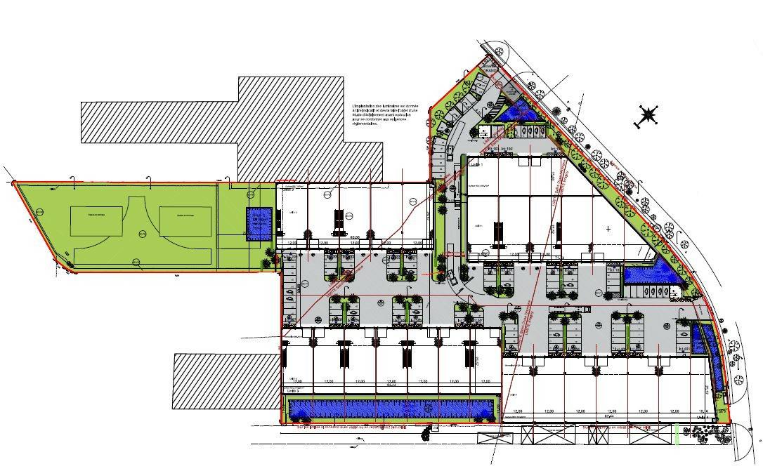
Veelage Eragny - Bâtiment C
Accès direct Cergy - St Ouen l'Aumône - Herblay
Parc d'Activité des Bellevues
A proximité de toutes des grands axes autoroutiers, entre les portes de Paris et du Vexin, nous vous proposons le compromis idéal entre activité et bureaux dans un parc neuf.
Profitant d’une excellente répartition des surfaces d’activités et bureaux, ces cellules d’activité fonctionnelles bénéficient des dernières normes environnementales pour réduire le poste énergétique des sociétés récentes à la recherche de performance et rentabilité.
En sus d’un accès de premier ordre desservant rapidement PARIS et la région Nord Ouest, les Yvelines et la première couronne, les prestations attendues sont au rdv :
Multiples portes d’accès au site facilitant les entrées et sorties,
Bonne capacité d’accueil des poids lourds grâce à une large voirie,
Hauteur sous plafond importante pour optimiser le stockage,
Architecture contemporaine,
Larges portes sectionnelles,
Climatisation en bureaux et chauffage aérothermes dans entrepôts
Surface bureaux <25% surface totale de chaque cellule….
L’actif se situe au cœur des Bellevues, Accès privilégié à l’A15 pour Paris et Cergy et RN184 pour la desserte des grandes axes autoroutiers de l’Ouest de l’Île de France.
Le compromis idéal de ces belles surfaces d’activité, sera votre atout pour faire croître durablement votre société au cours des prochaines années.
Projet de développement de 9.650 m² environ à usage d'activité avec bureaux d'accompagnement.Parc PME/PMI se composant de 3 bâtiments distincts, dont certains bénéficieront de terrasses accessibles.
Construction en 2 phases : Bâtiments A et B en 1ère phase Début des travaux Septembre 2022, Livraison T3 2023 ; puis Bâtiment C en 2e phase.Bâtiment A : 2.661 m² / Bâtiment B : 5.112 m² / Bâtiment C : 1.868 m²
Pour visiter ou connaître nos autres offres à proximité,
Contactez votre consultant BNPPARIBAS REAL ESTATE
Services & prestations
Hauteurs
-
Hauteur libre : 7,00 mètre(s)
-
Hauteur sous porte plain-pied : 3,00 mètre(s) x 3,50m
Equipements
-
Charge au sol Rdc : 3,00 tonne(s)/m²
-
Porte d'accès plain-pied
-
Puissance électrique : Tarif Bleu (compteur jaune possible)
Type / Etat du bâtiment
-
Etat de l'immeuble : Neuf
-
Etat des locaux : Neuf
Prestations de service
-
Parking : Quelques emplacements pour véhicules électriques
-
Sécurité : Portails motorisés
Aménagements
-
Aménagement des bureaux : Espaces Ouverts
-
Locaux sociaux : Sanitaires
Extérieurs
-
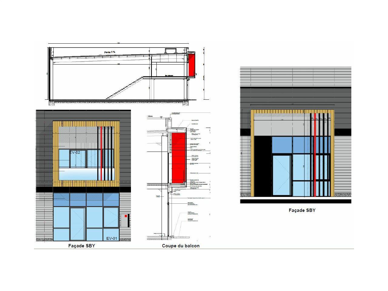
Terrasses - jardins : Balcons sur tous les lots (sauf lots 101 à 103)
Informations complémentaires
-
Chauffage aérothermes gaz (à confirmer), Climatisation, RIE à 5 minutes à pied
-
Local vélo










