




Location Local d'activité 2 999 m²
95520 Osny
2 999 m²
Divisible dès 314 m²
à partir de 110 €
HT/HC/m²/an
Disponibilité : Immédiate

Mathis RAYNAL
Description
Osny
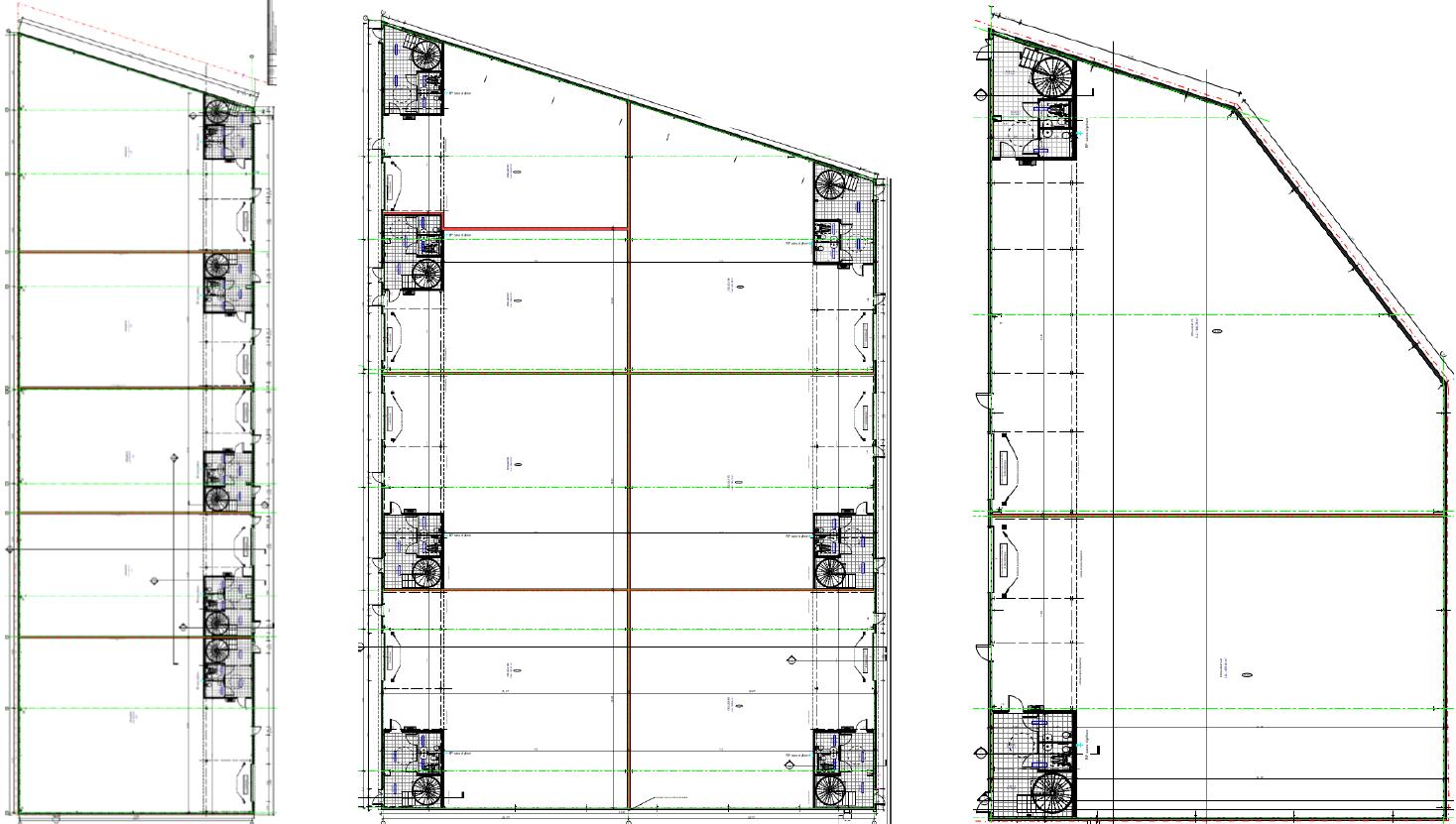
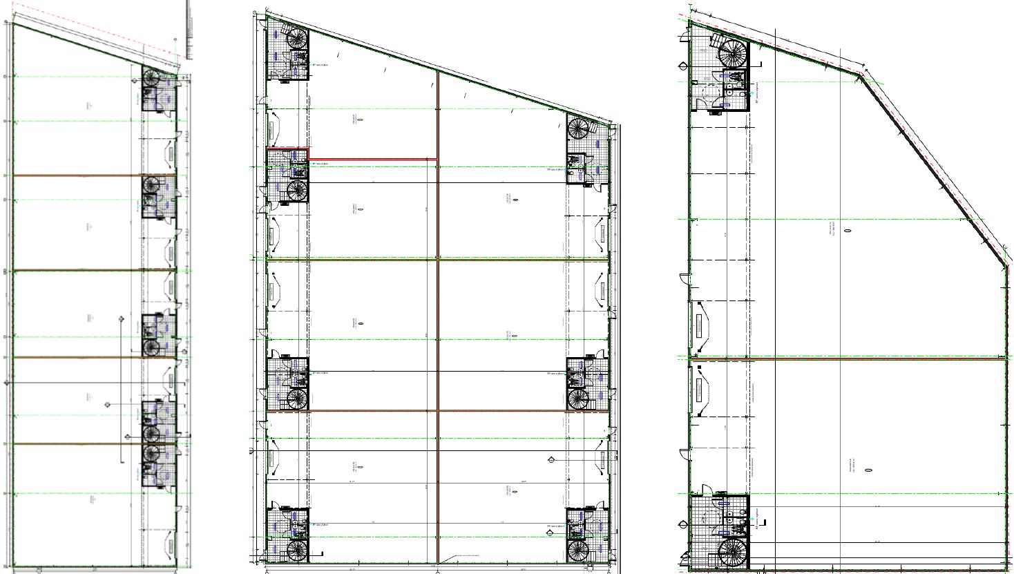
Zone Industrielle d’Osny - Bâtiment B
BNP PARIBAS Real Estate vous propose à la location sur OSNY des cellules d'activité et bureaux dans un parc neuf.
A proximité de toutes des grands axes autoroutiers, entre les portes de Paris et du Vexin, Nous vous proposons le compromis idéal entre activité et bureaux dans un parc neuf.
Profitant d’une excellente répartition des surfaces d’activités et bureaux, ces cellules d’activité fonctionnelles bénéficient des dernières normes environnementales pour réduire le poste énergétique des sociétés récentes à la recherche de performance et rentabilité.
En sus d’un accès de premier ordre desservant rapidement la région Nord Ouest, les Yvelines et la première couronne, les prestations attendues sont au rdv :
Multiples portes d’accès au site facilitant les entrées et sorties,
Bonne capacité d’accueil des poids lourds grâce à une large voirie,
Hauteur sous plafond importante pour optimiser le stockage,
Architecture contemporaine,
Larges portes sectionnelles,
Climatisation en bureaux et chauffage aérothermes dans entrepôts
Surface bureaux <25% surface totale de chaque cellule….
L’actif se situe au cœur de la zone industrielle d’Osny où l’offre de parc d’activités neuf est faible.
Il bénéficie d’une excellente desserte des grandes axes autoroutiers de l’Ouest de l’Île de France (A 15 / N 14)
Le compromis idéal de ces belles surfaces d’activité, sera votre atout pour faire croître durablement votre société au cours des prochaines années.
Pour visiter ou connaître nos autres offres à proximité,
Contactez votre consultant BNPPARIBAS REAL ESTATE
Services & prestations
Hauteurs
-
Hauteur libre : 8,00 mètre(s)
Accès véhicules
-
Accessibilité type véhicules : Tous porteurs
Equipements
-
Charge au sol Rdc : 3,00 tonne(s)/m²
-
Porte d'accès plain-pied : 7
Prestations de service
-
Parking : 56 Places
Normes, Certifications et Labels
-
Certification : BREEAM
Informations complémentaires
-
Chauffage : aérotherme gaz ou électrique, Chauffage et rafraichissement : type VRV (Volume de Réfrigérant Variable)










