




Location Local d'activité 855 m²
95310 Saint-Ouen-l'Aumône
855 m²
90 €
HT/HC/m²/an
Disponibilité : Immédiate

Mathis RAYNAL
Description
Saint-Ouen-l'Aumône
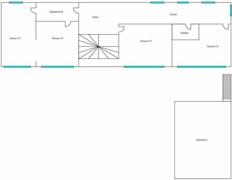
BNP PARIBAS Real Estate vous propose à la location une cellule d'activité avec bureaux d'accompagnement. Situé à Saint-Ouen-l'Aumône, proximité N184.
Nous vous proposons, à la location, un bâtiment indépendant développant une surface de 855m² environ dont une cour privative de 600 m².
Prestations techniques : charpente métallique, couverture en bac acier isolé, murs en rideaux et sol en béton. La hauteur libre est de 7,50m.
Eclairage naturel assuré par skydômes et intérieur par tubes fluorescents.
Le bâtiment est doté d'une porte d'accès plain-pied , dont la hauteur s'élève à 3 mètres (tous porteurs) et propose une surface de stockage extérieure privative significative
Pour la partie bureaux, lumineux et en très bon état, le chauffage est électrique, éclairage leds.
8 places de parking pour véhicules légers en façade du bâtiment.
Le bâtiment est idéalement situé au croisement de la N184 et de l'autoroute A15 .
Enfin, la ligne du RER C dessert les locaux via la station « SAINT OUEN L AUMONE LIESSE ».
Pour tout renseignement ou visite, n'hésitez pas à contacter votre consultant BNPPARIBAS REAL ESTATE
Services & prestations
Hauteurs
-
Hauteur libre : De 6,35 m à 7,75 m
Accès véhicules
-
Accessibilité type véhicules : Tous porteurs
Equipements
-
Charge au sol Rdc : 3,00 tonne(s)/m²
-
Climatisation : Réversible
-
Eclairage Bureaux : Luminaires encastrés
-
Eclairage intérieur : Lampe à sodium
-
Eclairage naturel : Skydomes
-
Faux plafond
-
Fenêtres
-
Porte d'accès plain-pied
-
Porte d'accès à quai
-
Réseau Incendie Armé
Type / Etat du bâtiment
-
Etat de l'immeuble : Etat d'usage
-
Etat des locaux : Rénové
Structure du bâtiment
-
Couverture : Bac acier isolé
-
Murs : Bardage double peau
Prestations de service
-
Parking
Aménagements
-
Bureaux cloisonnés
-
Hall d'accueil
-
Locaux sociaux : Vestiaires Sanitaires, réfectoire
-
Sanitaires : Privatif(s)
Extérieurs
-
Aire de stockage extérieure










