




Location Local d'activité 3 292 m²
94200 Ivry-sur-Seine
3 292 m²
197 €
HT/HC/m²/an
Disponibilité : 3 mois après accord

Elsa SIERRA
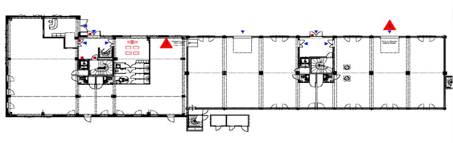
Description
IVRY SUR SEINE (94) - A LOUER
BNP PARIBAS Real Estate vous propose, à Ivry sur Seine, proche des axes routiers et des transports en commun, des locaux d'activité et bureaux à louer.
BNP PARIBAS REAL ESTATE vous propose, à la location des locaux d'activité avec bureaux d'accompagnement d'une surface de 3 292 m².
Le bâtiment offre de grands plateaux permettant une grande flexibilité d'aménagement, un accès aux véhicules légers/lourds et de nombreuses autres services et prestations techniques. Ces locaux bénéficient d'une accessibilité remarquable dans un environnement tertiaire et dynamique.
Accessibilité :
- Accès routier : A86; Boulevard Périphérique
- RER C : Ivry sur seine
- M7 : Pierre et Marie Curie
Services/prestations
- Porte d'accès plain pied
- Emplacement VL : 28
- Aire de livraison
- Bureaux cloisonnés
Pour toute information complémentaire, n'hésitez pas à prendre contact avec nos consultants BNP PARIBAS REAL ESTATE.
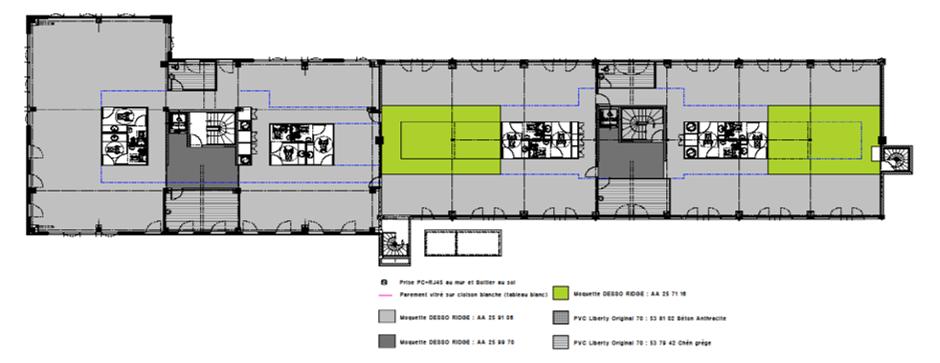
Services & prestations
Hauteurs
-
Hauteur libre : 4,00 mètre(s)
Equipements
-
Ascenseurs
-
Charge au sol Rdc : 3,00 tonne(s)/m²
-
Climatisation
-
Eclairage intérieur : LED 150 lux
-
Eclairage naturel
-
Faux plafond
-
Porte d'accès plain-pied
-
Sol bureaux : Moquette
-
Sols du bâtiment : Béton
-
Source chauffage : Gaz
Type / Etat du bâtiment
-
Etat des locaux : Etat d'usage, Etat d'usage
-
Etat du terrain : Goudronné
-
Immeuble indépendant
Prestations de service
-
Parking : 14 Places, 14 Places
Aménagements
-
Accès Pers. Mobilité Réduite : Oui, Oui
-
Bureaux cloisonnés
Extérieurs
-
Aire de livraison
-
Eclairage extérieur : étanches accrochés en façade et candelabres
Informations complémentaires
-
Site clos, contrôle d’accès sur portails
-
Clôtures à barreaux métalliques
-
Espaces verts selon les plans de paysagement,










