




Location Local d'activité 4 202 m²
94200 Ivry-sur-Seine
4 202 m²
142 €
HT/HC/m²/an
Disponibilité : Immédiate

Romain LENOBLE
Description
IVRY SUR SEINE (94) - A LOUER
BNP PARIBAS REAL ESTATE vous propose, à Ivry sur Seine, des locaux d'activité et bureaux à louer.
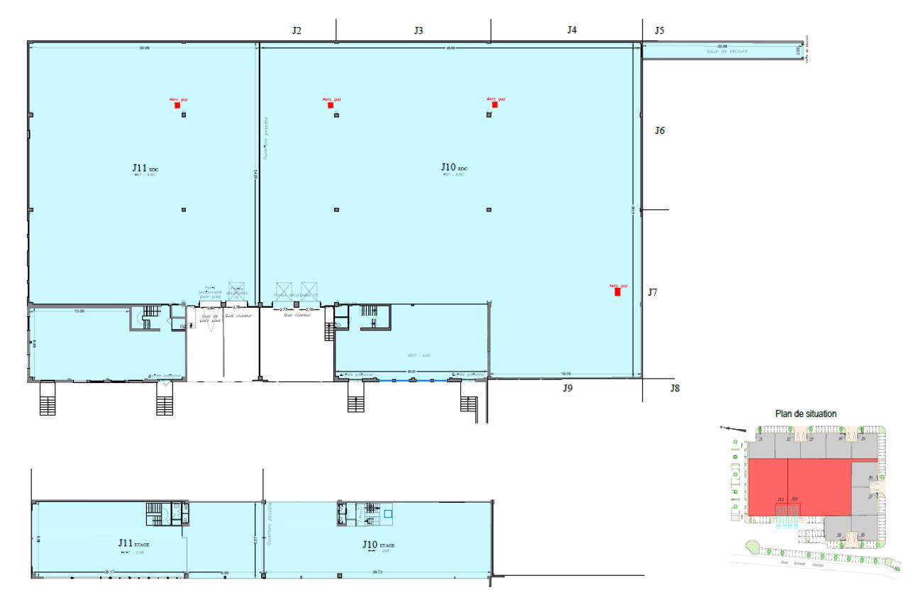
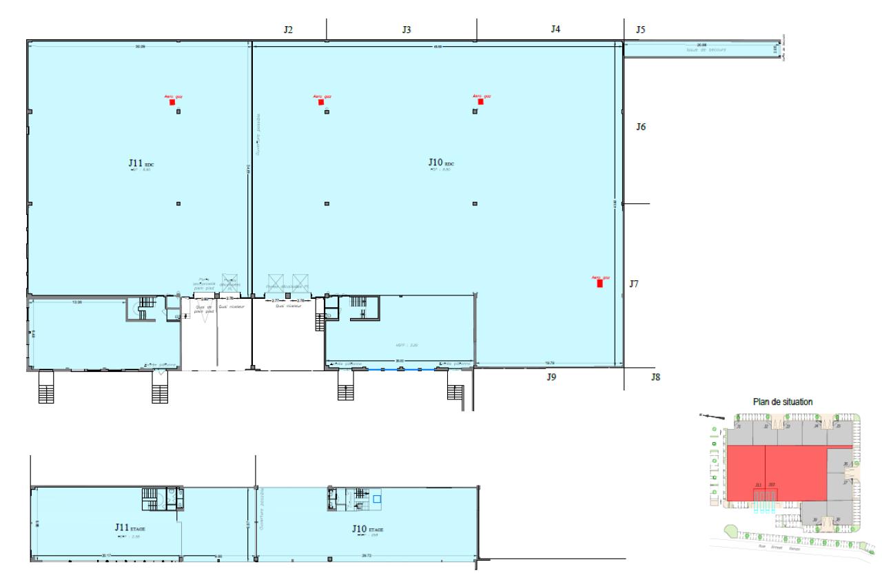
Reprise possible des équipements privatifs du preneur actuel : chambre froide de 500 m², mezzanine et quais additionnels.
BNP PARIBAS REAL ESTATE vous propose, à la location, deux cellules d'activité dans un parc d'activité d’une surface totale de 4 202 m². Le bâtiment est situé à Ivry-sur-Seine (94).
Disponibilité : selon les surfaces
Caractéristiques techniques
- Porte d'accès plain-pied
- Hauteurs libres : 8,6 mètres
- Charges au sol RDC : 3,5 tonnes / m²
- Sécurité : Contrôle d'accès / Gardiennage / interphone
- Accessibilité type véhicule : Tous porteurs
- Bureaux cloisonnés
- 5 quais VL extérieurs (plateforme extérieure)
- 3 Quais PL + 1 rampe d’accès
- Mezzanine de 614 m²
Accessibilité
- RER C : Vitry sur Seine
- Aéroport : Paris Orly
Pour toute information complémentaire, contactez-nous.
Services & prestations
Hauteurs
-
Hauteur libre : 8,80 mètre(s)
-
Hauteur sous poutre : 7,49 mètre(s)
Accès véhicules
-
Accessibilité type véhicules : Tous porteurs
Equipements
-
Charge au sol Rdc : 3,50 tonne(s)/m²
-
Eclairage Bureaux : Luminaires encastrés
-
Faux plafond : Dal. fibres minéral.
-
Porte d'accès à quai : 3 Niveleurs mécaniques
-
Puissance électrique : Tarif Jaune
-
Sol bureaux : Moquette
-
Sols du bâtiment : Béton
-
Source chauffage : Electrique
Type / Etat du bâtiment
-
Etat de l'immeuble : Etat d'usage
-
Etat des locaux : Etat d'usage, Très bon état
-
Etat du terrain : Goudronné
Structure du bâtiment
-
Charpente : Béton
-
Couverture : Bac acier isolé
-
Murs : Parpaings
Prestations de service
-
Parking
-
Sécurité : Contrôle d'accès Gardiennage, interphone
Aménagements
-
Bureaux cloisonnés










