

Location Local d'activité 7 900 m²
94370 Sucy-en-Brie
7 900 m²
Divisible dès 3 950 m²
à partir de 170 €
HT/HC/m²/an
Disponibilité : 15 mois après accord

Guillaume COCHET
Description
SUCY EN BRIE
A proximité immédiate du RER.
BNP PARIBAS REAL ESTATE vous propose à la Location, sur la commune de Sucy en Brie, à proximité du RER A : un bâtiment indépendant de nouvelles génération, en BEFA.
Possibilité de s'adapter facilement à votre cahier des charges.
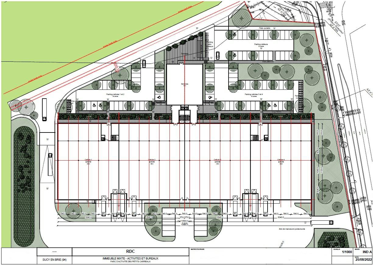
BNP PARIBAS REAL ESTATE vous propose, à la location un bâtiment indépendant de nouvelles génération en BEFA avec bureaux d’accompagnement d’une surface de 7900 m² environ divisible à partir de 3 950 m².
Le bâtiment offre de grands plateaux permettant une grande flexibilité d'aménagement, un accès aux véhicules légers/lourds et de nombreux autres services et prestations techniques. Ces locaux bénéficient d’une accessibilité remarquable dans un environnement tertiaire et dynamique.
Accessibilité
- Desserte routière : N4 - N19
- RER : A "Sucy - Bonneuil"
Services / Prestations
- Hauteur libre : 8.00 mètres
- Portes d'accès à quai : 4 niveleurs
- Portes d'accès plain-pied : 4 sectionnelles
- Restauration : Coin cuisine
- Parking voitures : 83 places
- Parking motos : 20 Places / Parking vélos : 36 Places
- Voie piétonne et piste cyclable
Pour toute information complémentaire, n'hésitez pas à prendre contact avec nos consultants BNP PARIBAS REAL ESTATE.
Services & prestations
Hauteurs
-
Hauteur libre : 8,00 mètre(s)
Equipements
-
Climatisation
-
Eclairage Bureaux : Luminaires encastrés LED
-
Eclairage intérieur : LED
-
Fenêtres
-
Porte d'accès plain-pied : 4 sectionnelles
-
Porte d'accès à quai : 4 niveleurs
Structure du bâtiment
-
Murs : Bardage double peau
Aménagements
-
Locaux sociaux : Vestiaires , Sanitaires
-
Sanitaires : H/F
Extérieurs
-
Terrasses - jardins
Informations complémentaires
-
Coin cuisine, Voie piétonne et piste cyclable
-
Locaux très lumineux










