




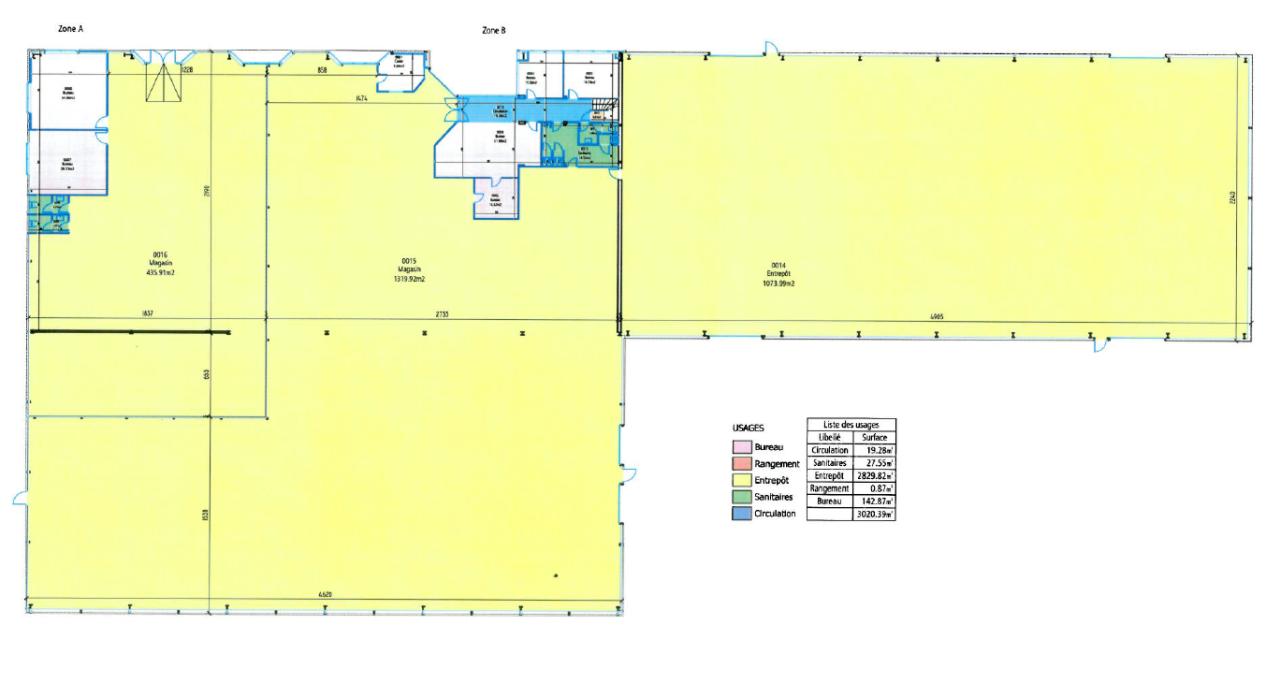
Location Local d'activité 3 120 m²
78190 Trappes
3 120 m²
110 €
HT/HC/m²/an
Disponibilité : 01/04/2026

Elsa SIERRA
Description
TRAPPES (78) - A LOUER
RARE SUR LE SECTEUR !
BNP PARIBAS REAL ESTATE vous propose, un bâtiment indépendant et traversant, édifié sur une parcelle de plus de 10 000 m², localisé à Trappes.
Ce bâtiment dispose d'une belle hauteur sous plafond, de grandes portes sectionnelles de plain-pied, d'une accessibilité aux véhicules gros porteurs et de bureaux d'accompagnement.
Site clos et sécurisé.
Travaux de rénovations prévus par le bailleur en 2026, nous consulter.
RARE SUR LE SECTEUR !
BNP PARIBAS REAL ESTATE vous propose, un bâtiment indépendant et traversant, édifié sur une parcelle de plus de 10 000 m², localisé à Trappes.
Ce bâtiment dispose d'une belle hauteur sous plafond, de grandes portes sectionnelles de plain-pied, d'une accessibilité aux véhicules gros porteurs et de bureaux d'accompagnement.
Site clos et sécurisé.
Travaux de rénovations prévus par le bailleur en 2026, nous consulter.
Services & prestations
Hauteurs
-
Hauteur sous poutre : 5,80 mètre(s) au plus bas (activité), 6,50 mètre(s) au plus haut (activité), 7,40 mètre(s) dans la partie entrepôt
Accès véhicules
-
Accessibilité type véhicules : Tous porteurs
Equipements
-
Câblage informatique
-
Eclairage Bureaux : Luminaires encastrés LED
-
Faux plafond
-
Pont roulant : 2
-
Porte d'accès plain-pied : 6 dont 4 portes de 4,50 m de hauteur
-
Puissance électrique : Tarif Jaune
-
Source chauffage : Gaz par aérothermes
-
Type de chauffage : Individuel
Type / Etat du bâtiment
-
Immeuble indépendant
Structure du bâtiment
-
Couverture : Bac acier isolé
-
Murs : Bardage
Prestations de service
-
Parking : 47 Places
-
Sécurité : Contrôle d'accès porte manuelle, Vidéo-surveillance
Aménagements
-
Bureaux cloisonnés
Extérieurs
-
Aire de manoeuvre
Informations complémentaires
-
Activité (2 portes) - Entrepôt (4 portes), Chauffage électrique, Parcelle de 10 322 m²










