




2 Rue Jean Séguéla
31300 Toulouse
3 890 m²
Divisible dès 778 m²
à partir de 2 489 600 €
HT/HD
Disponibilité : 31/03/2026

Olivier CALVET
Description
*** TOULOUSE OUEST : nouvelle opportunité tertiaire à construire à vendre ou à louer ***
BNP PARIBAS REAL ESTATE vous invite à découvrir la nouvelle opération de bureaux "AIR ONE", disponible à la vente ou à la location.
AIR ONE est un projet urbain s'inscrivant durablement dans le maillage de la métropole toulousaine. A la croisée des territoires de Toulouse, Colomiers et de Blagnac, AIR ONE est une véritable figure de proue pour cette nouvelle zone et lui confère son esprit résolument innovant et ambitieux.
Situé à l'entrée principale de la ZAC de ST MARTIN DU TOUCH, dans le quartier des Ramassiers, AIR ONE marque l'arrivée dans une zone dédiée aux professionnels. Au sein de l'un des plus importants poumons économiques de la métropole, à seulement 15 minutes du centre-ville de Toulouse et au coeur du pôle aéronautique, AIR ONE bénéficiera d'une accessibilité incroyable grâce à sa proximité avec la rocade RN 124, d'une gare TER et demain d'une station située au pied de l'immeuble sur la 3e ligne de métro (2028).
Ce remarquable projet par son architecture et son éco-conception s'articulera autour d'une programmation mixte comprenant :
3 890 m² de bureaux ultra-modernes
1 750 m² dédiés à un pôle médical proposant une offre complète de spécialités avec des créneaux prioritaires pour les futurs usagers bureaux.
Ainsi, AIR ONE propose près de 5 685 m² de cellules divisibles et ultra modulaires.
UNE ADRESSE AU COEUR DE L'INNOVATION
À la croisée des zones économiques d'innovation de la métropole toulousaine et des bassins d'emplois riches : Parc Technologique de Basso Cambo, zone d'activités Aerospace Valley, aéroport Toulouse-Blagnac, Colomiers.
UNE ACCESSIBILITÉ IDÉALE POUR TOUS
Au coeur de la mobilité toulousaine et de l'ensemble des modes de transport : parking voitures et motos, bornes de recharge électrique, parking vélo. Situé à proximité des accès par les transports en commun, notamment l'arrêt AIRBUS de la future Ligne C placé au pied d'AIR ONE.
UN BÂTIMENT D'AVENIR ET D'AMBITIONS
La volonté d'AIR ONE est de proposer un projet immobilier mixte dans lequel les activités se complètent et répondent en premier lieu aux besoins des utilisateurs.
La démarche éco-citoyenne est au coeur de ses valeurs : intégration au milieu naturel grâce à la végétalisation du bâtiment, à la transparence des façades, à l'îlot de fraîcheur au centre de la conception, l'utilisation d'énergies renouvelables et la mise en avant de mobilités douces.
AIR ONE se distingue par une architecture innovante qui puise son tempérament énergique et chaleureux dans les matériaux qu'elle emploie et dans les lignes géométriques qui rythment sa façade.
Composé de façades vitrées avec menuiserie aluminium et conçu avec la volonté de placer la nature au coeur du projet, le bâtiment bénéficie de réelles performances énergétiques.
LE PÔLE MÉDICAL
Un ensemble de professionnels de santé réunis sur 1 750 m² répartis sur 2 niveaux et disponible pour les collaborateurs.
Pensé pour le confort des praticiens et le bien-être des patients.
Le pôle médical se retrouve sur les deux premiers niveaux et dispose d'un parking situé au 3ème niveau (49 places). Les bureaux sont regroupés sur les 5 niveaux supérieurs ; le parking pour les usagers des bureaux est situé en sous-sol et dispose de 62 places.
LES BUREAUX
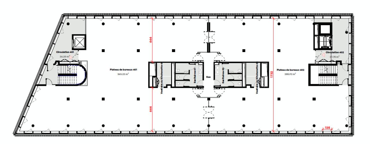
Les 5 niveaux supérieurs proposent aux utilisateurs des espaces bureaux, coworking et salons, adaptés aux modes de travail de demain. Chaque plateau représente une superficie de 775 m² livrés libre.
UN PROJET...
ADAPTÉ AUX MODES DE DÉPLACEMENT DE DEMAIN
La station de métro, située au pied du projet AIR ONE, favorise les transports en commun. Un local à vélo sécurisé facilite ce mode de déplacement doux.
ADAPTÉ AUX MODES DE TRAVAIL DE DEMAIN
La modularité des bureaux est adaptée au coworking, aux espaces multi-fonctionnels. Ce projet, totalement dédié aux entreprises, leur permettra de s'épanouir grâce à son accessibilité, son confort et sa flexibilité.
PLAÇANT L'HOMME AU COEUR DE LA CONCEPTION
Les espaces végétalisés sont pensés pour être des lieux de vie, de pause, de rencontres et d'échanges. La mixité de la destination d'AIR ONE favorise la mise en place et la pratique du «sport santé».
RESPECTANT LES ESPACES DÉDIÉS
Le pôle médical et l'espace bureaux sont totalement indépendants ; chaque espace dispose de ses entrées et de son parking.
UNE ARCHITECTURE REMARQUABLE
AIR ONE se structure autour d'engagements concrets qui visent à réduire drastiquement l'empreinte écologique tout en combinant confort et qualité de vie au travail.
LA PERFORMANCE ÉNERGÉTIQUE
Du point de vue de la performance énergétique, les réponses apportées par notre projet seront les suivantes :
- Une efficience énergétique par compacité du bâtiment,
- Une enveloppe thermique isolée efficacement et une inertie thermique apportée par les dalles béton,
- Le traitement des ponts thermiques des dalles intermédiaires via l'isolation par l'extérieur,
- Des apports solaires valorisés via les nombreuses ouvertures du bâtiment,
- Une centrale photovoltaïque sera installée sur la toiture principale du bâtiment,
- Respect de la future norme RE2020 pour les bureaux et E2C1 pour le pôle médical.
ENERGIE ET CONSTRUCTION
Objectif : réduire l'empreinte carbone
Le projet AIR ONE possède plusieurs certifications et labels :
HQE BATIMENT DURABLE Niveau Très performant voire Excellent
RE 2020 Respect de la future RE2020 pour les bureaux et niveau E2C1 pour les pôles médicaux
Certification Effinature Haute Valeur Ecologique
Certivea : Certificateur engagé pour des cadres de vie durables en France et à l'International
ECO-CONCEPTION
Sur ce projet, l'idée est de concevoir un bâtiment efficace, confortable et résilient, proche de la nature, et développer une utilisation raisonnée des énergies et ressources naturelles durant la phase de réalisation du projet.
RESPECT DE L'ENVIRONNEMENT
La nature et la biodiversité occupent une place centrale dans le projet AIR ONE, ce qui favorise le bien-être de ses occupants :
- Un coeur d'îlot identifiable composé de grands arbres adaptés au climat et au milieu urbain,
- Un sol pensé comme un sous-bois de forêt qui évolue en fonction des saisons.
- Des essences choisies qui proposent une variété de strates propices à la biodiversité.
L'intégralité de nos offres sur : https://www.bnppre.fr/toulouse
Services & prestations
Aménagements
-
Sanitaires : Parties communes
Equipements
-
Ascenseurs
-
Climatisation : Réversible
-
Câblage informatique
-
Distribution chauffage : Réversible
-
Distribution climatisation : Ventilo convecteur en plafonnier
-
Eclairage Bureaux : Luminaires encastrés
-
Faux plafond : Dal. fibres minéral.
-
Plinthes techniques périphériques
-
Production climatisation : Autonome
-
Sol bureaux : Moquette
Prestations de service
-
Sécurité : Contrôle d'accès
Extérieurs
-
Terrasses - jardins : 2 rooftops : 70 m² et 70 m²
Normes, Certifications et Labels
-
Certification : HQE
Type / Etat du bâtiment
-
Etat des locaux : Neuf
-
IGH / Code du travail : Code du travail
Informations complémentaires
-
100 emplacements de parking : prix de vente nous consulter, Bornes IRVE
-
Prises électriques vélos
-
GTB, Photovoltaïque en auto consommation pour les PC










