




Vente Bureau 634 m²
92210 Saint-Cloud
634 m²
Divisible dès 250 m²
1 077 800 €
HT/HD
Disponibilité : Nous consulter

Benjamin HECTOR
Description
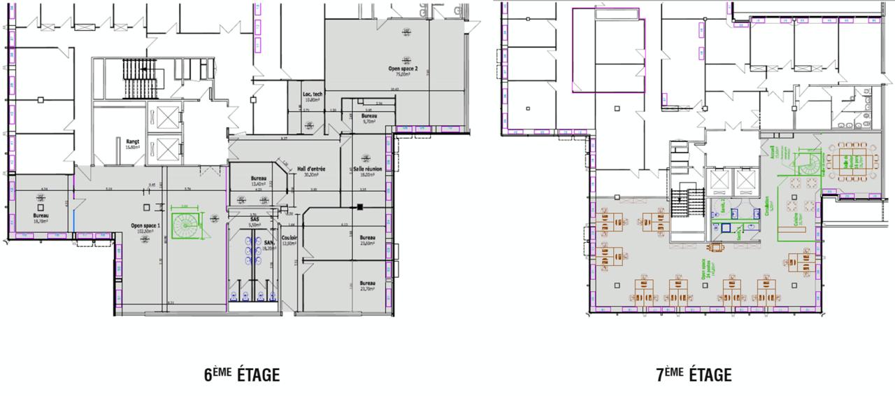
Au sein de l'ensemble immobilier des Bureaux de la Colline, nous vous proposons d'acquérir une surface en duplex avec vue dégagée sur Paris.
Les plateaux sont organisés en espaces ouverts et cloisonnés avec salles de réunion et cuisine, les étages sont reliés entre eux par une trémie.
BNP Paribas Real Estate vous propose d'acquérir deux plateaux d'une surface totale de 634 m² à Saint-Cloud.
Les locaux se situent au 6ème et au 7ème étage de l'ensemble immobilier Les Bureaux de la Colline.
Dix emplacements de parking en sus du prix complètent les plateaux.
De plus, l'actif bénéficie des nombreux services proposés par Les Bureaux de la Colline : restaurant inter entreprise, service courrier, accueil, surveillance 24/7.
Il dispose d'une bonne accessibilité à seulement quelques minutes à pied du tramway T2 et à quelques minutes en voiture de l'A13 et de la Porte d'Auteuil.
N'hésitez plus et venez découvrir ce bien.
Services & prestations
Aménagements
-
Accueil : Espace d'attente
-
Aménagement des bureaux : Cloisonnés/Ouverts
-
Complexe Salle de réunion
-
Sanitaires
Equipements
-
Ascenseurs
-
Câblage informatique : Fibre optique
-
Eclairage Bureaux : Luminaires encastrés
-
Faux plafond : Dal. fibres minéral.
-
Sol bureaux : Moquette
Prestations de service
-
Cafétéria : R.I.E.
-
Parking
-
Sécurité : PC Sécurité
Extérieurs
-
Aire de livraison
Type / Etat du bâtiment
-
Etat de l'immeuble : Seconde main
-
Immeuble copropriété










