




26 Grand Place
62120 Aire-sur-la-Lys
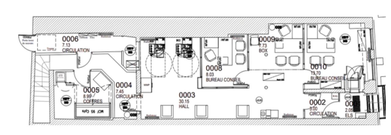
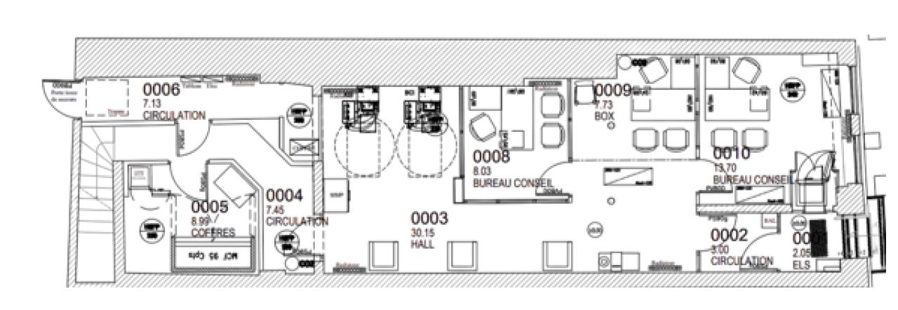
279 m²
170 000 €
HT/HD
Disponibilité : Immédiate

Annabelle KOZIELSKI
Description
Bâtiment à vendre à Aire-sur-la-Lys
Nous vous proposons un immeuble d'environ 280 m² situé sur la place la plus commerçante de la ville bénéficiant de nombreuses places de parking aux alentours et de larges voies piétonnes pour y accéder.
Ce bâtiment offre une belle façade , des huisseries et une toiture en bon état ainsi qu'un accès arrière, accès PMR et / ou livraison.
N'hésitez pas à nous contacter afin de planifier une visite !


