




5 Rue Cassini
62575 Blendecques
344 m²
400 000 €
HT/HD
Disponibilité : Immédiate

Etienne DARTOIS
Description
Bureaux à vendre à Blendecques (proche Saint-Omer) - Surface de bureaux professionnels en Nord-Pas-De-Calais
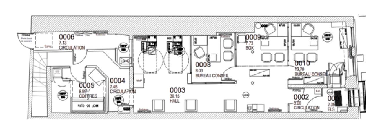
BNP Paribas Real Estate vous propose à la vente une surface de bureaux, brute de béton, bénéficiant d'un bel effet d'enseigne à 10 min du centre-ville de St Omer et à 5 min du Centre Commercial Longuenesse avec ses nombreux commerces et services.
- Autoroute A26 à proximité
- A 8 min de la gare de St Omer - dessert Lille, Calais et Arras
- Bus dans la zone du Centre Commercial
- Cellule brute de béton
- Bel effet d'enseigne
- A 2 pas du CC Commercial Saint Omer
- Cellule ERPable
En quête d'espaces professionnels à vendre ou à louer dans le Nord/ Nord-Pas-de-Calais ? Nos options de location et de vente dans la métropole lilloise sont conçues pour répondre aux besoins des entreprises souhaitant s'implanter dans un environnement collaboratif. Explorez nos offres de plateaux et installez-vous rapidement à Lille.
Services & prestations
Type / Etat du bâtiment
-
Etat des locaux : Brut de béton


