




36 BOULEVARD DE VINCENNES
94120 Fontenay-sous-Bois
1 527 m²
Divisible dès 520 m²
6 106 800 €
HT/HD
Disponibilité : Immédiate

Antoine MALHERBE
Description
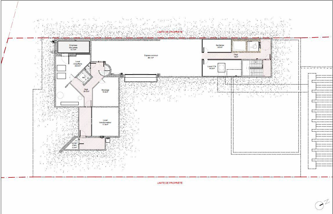
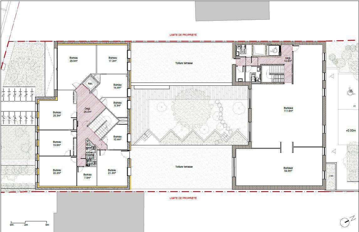
Bâtiment indépendant à vendre.
Sur une belle emprise foncière, BNP vous propose ce bâtiment indépendant à vendre. A quelques minutes à pied du RER A de Fontenay-sous-Bois et du bois de Vincennes, découvrez ces surfaces de bureaux avec multitude de parkings ainsi que plusieurs espaces extérieurs accessibles. L'immeuble est proposé à l'acquisition en l'état ou après restructuration réalisé par le propriétaire. Possibilité de faire un ERP.
Le 36 Boulevard De Vincennes à Fontenays-sous-bois propose une superficie utile de 1 526 m2 à vendre. L'immeuble possède 35 places de stationnement pour voitures, ainsi que des espaces extérieurs disponibles.
Services & prestations
Aménagements
-
Accueil
-
Bureaux cloisonnés
-
Hall d'accueil
Equipements
-
Ascenseurs
-
Climatisation
-
Faux plafond
Prestations de service
-
Parking
Type / Etat du bâtiment
-
Etat de l'immeuble : Restructuré avec PC
-
Etat des locaux : Etat d'usage
Informations complémentaires
-
Jardin










