Image

Image

Image

Image

Référence : OVCOM2531647
Vente Commerce 119 m²
11500 Quillan
119 m²
60 000 €
HT/HD
Disponibilité : Nous consulter
Référence : OVCOM2531647

Guillaume KLING
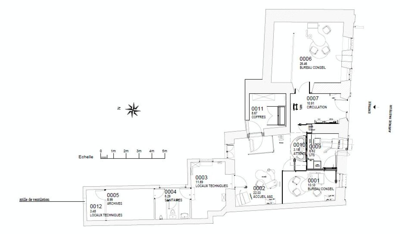
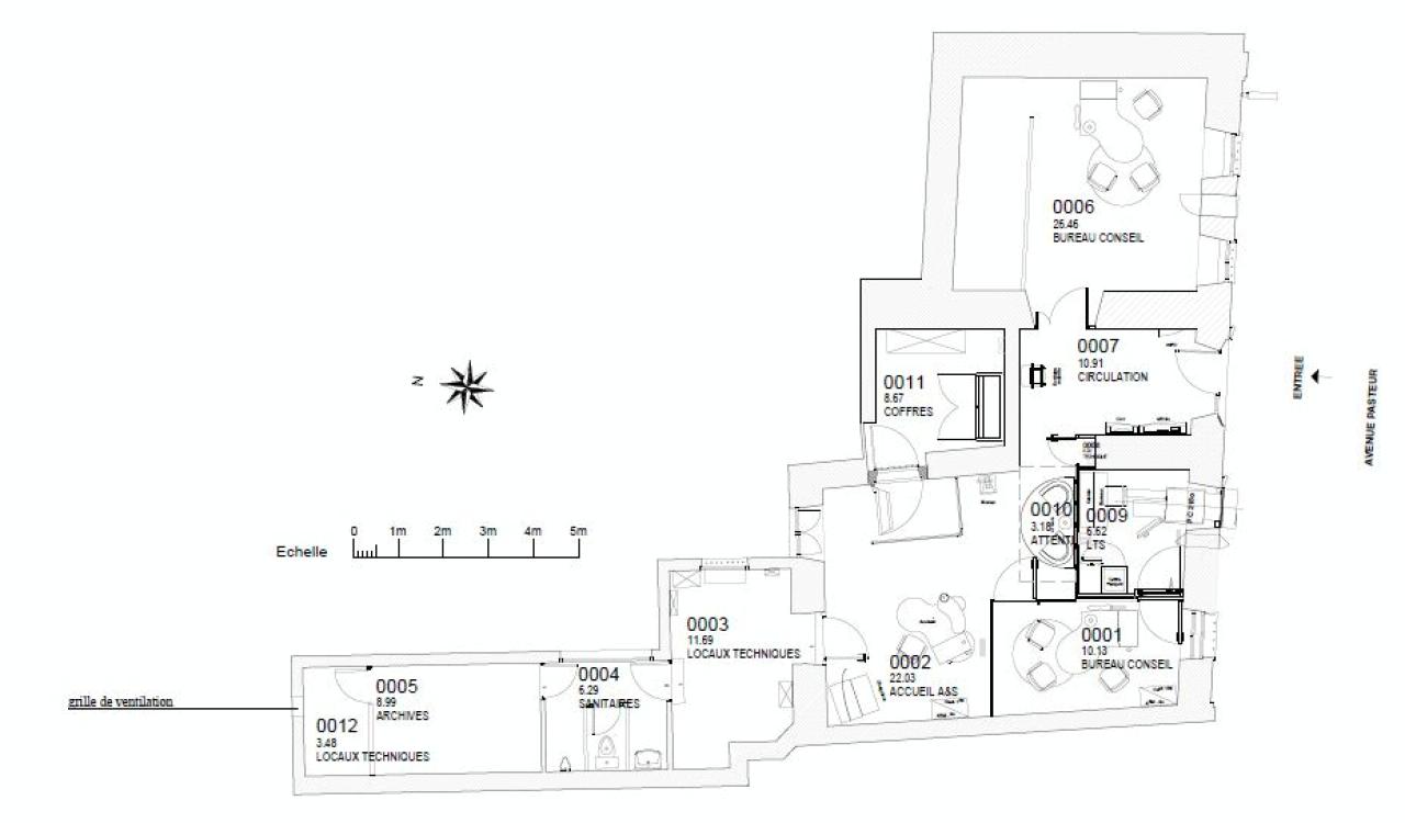
Description
A VENDRE MURS COMMERCIAUX
A VENDRE MURS COMMERCIAUX
120 m² environ
ex-agence bancaire BNP
locaux lumineux