




Vente Commerce 125 m²
44000 Nantes
125 m²
356 250 €
HT/HD
Disponibilité : Immédiate

Anne-Charlotte ZABEL
Description
BUREAUX À VENDRE - NANTES QUARTIER ST DONATIEN
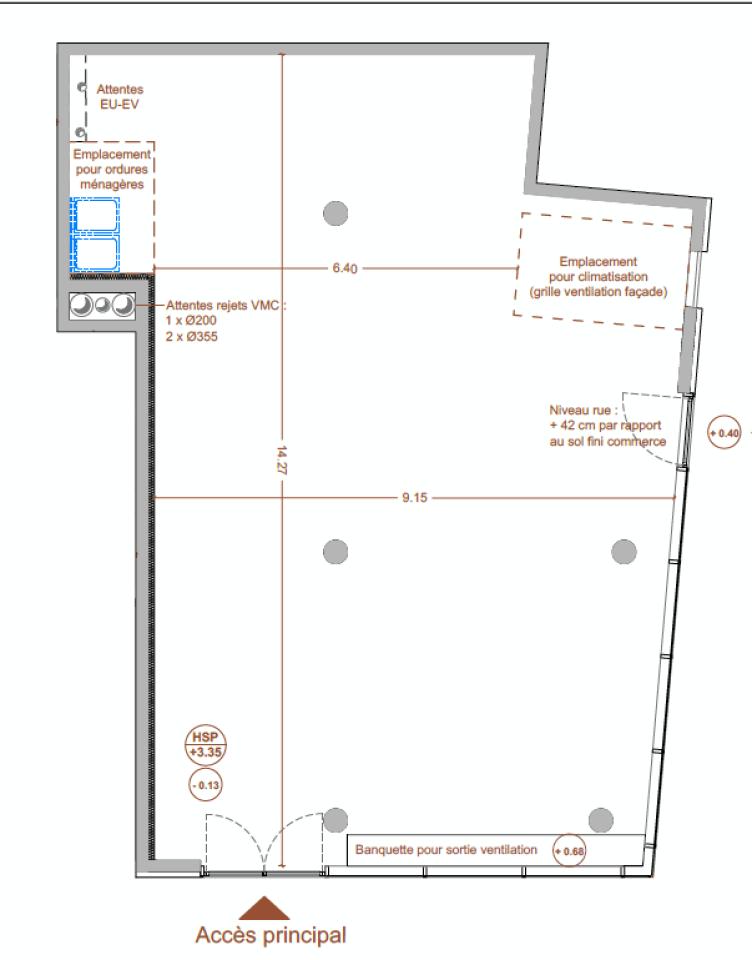
BNPPRE vous propose à la vente cette surface de 125 m² livrée brute de béton au cœur du quartier Saint-Donatien, proche de l'hypercentre de Nantes.
Bénéficiez de cet emplacement stratégique et de cette belle visibilité pour y implanter votre société au rez-de-chaussée de cet immeuble mixte.
Locaux ERPable. Idéal pour une profession libérale ou un commerce de proximité.
Surface livrée brut de béton, vitrine posée, gaine de climatisation en attente.
Livraison T3 2025.
Services & prestations
Type / Etat du bâtiment
-
Etat de l'immeuble : Neuf Brut de béton / Vitrine posée
Aménagements
-
Accès Pers. Mobilité Réduite
Normes, Certifications et Labels
-
Catégorie ERP : 5








