




Vente Entrepôt Classe B 15 000 m²
91070 Bondoufle
15 000 m²
Divisible dès 7 500 m²
Prix sur demande
Disponibilité : 6 mois après accord

Nicolas GOUY
Description
BONDOUFLE (91)
ZI LES BORDES
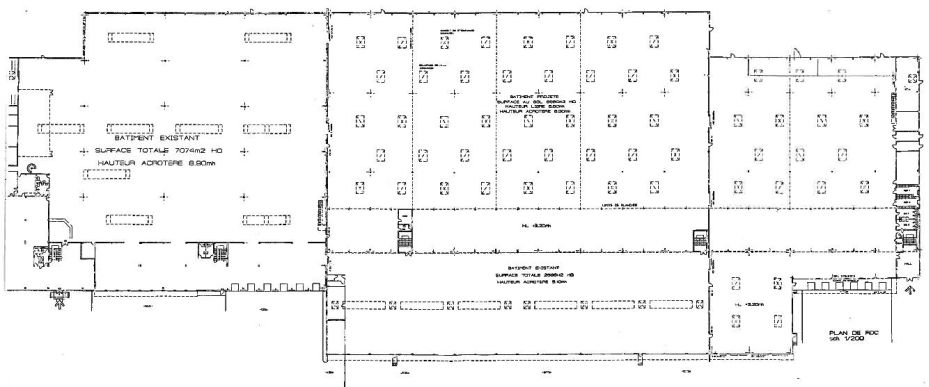
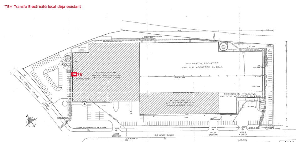
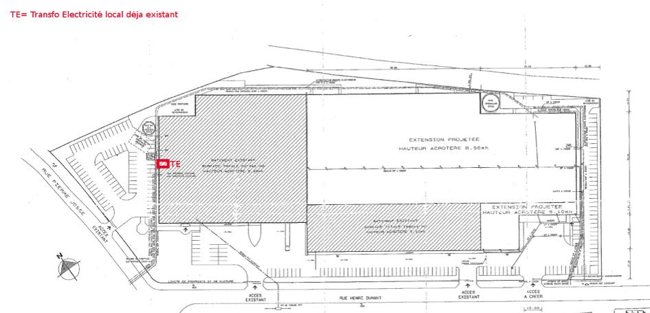
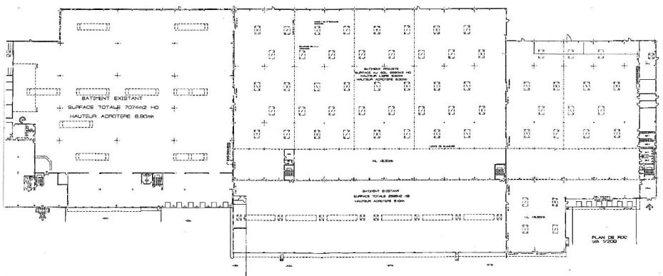
Nous vous proposons à la vente (location possible) une plate forme logistique de 15 000 m².
Autorisation d’exploiter : ICPE 1510 - Déclaration : 1185, 1530, 1532, 2910, 2920, 2925
Cet entrepôt est composé d'une surface de stockage et de bureaux d'accompagnement. Spécificités : 25 places de parking VL, 1 place de parking PL, Aire de manoeuvre entre 20 et 35 m environ, hauteur libre de 3,18 m à 7,87 m, 10 portes à plain pied (dont une pour compacteur carton)
ICPE :1510
Le site est accessible par l'A6 et à la N104.
Transports en commun :
RER D : Evry Courcouronnes à environ 7 km, Orangis Bois de l'Epine à 6,7 km, Grigny Centre à 7 km
Disponibilité : immédiate
Services & prestations
Hauteurs
-
Hauteur sous poutre : Selon endroit 3,18 à 7,87
Normes, Certifications et Labels
-
Autorisation d'exploiter 1 : 1510
Type / Etat du bâtiment
-
Etat des locaux : Etat d'usage
-
Immeuble indépendant
Equipements
-
Porte d'accès plain-pied : 10 dont 1 pour compacteur carton
Prestations de service
-
Parking : 1 Places, 25 Places
Aménagements
-
Bureaux cloisonnés
-
Hall d'accueil
Extérieurs
-
Aire de manoeuvre : Entre 20 et 35 m
Informations complémentaires
-
Dalle : epaisseur de 18 cm










